8 лет превращаю ваши "Хочу" в "Вау"

Дарья Пономаренко dannyxx

Рейтинг: 233
Верифицирован через Сбер ID
Всего отзывов: 3 0
Выполнила заданий: 4
  • Работ в портфолио: 9
  • Типовых услуг: 0
  • Работ на продажу: 0
Была на сайте:

Рабочие чертежи

Описание

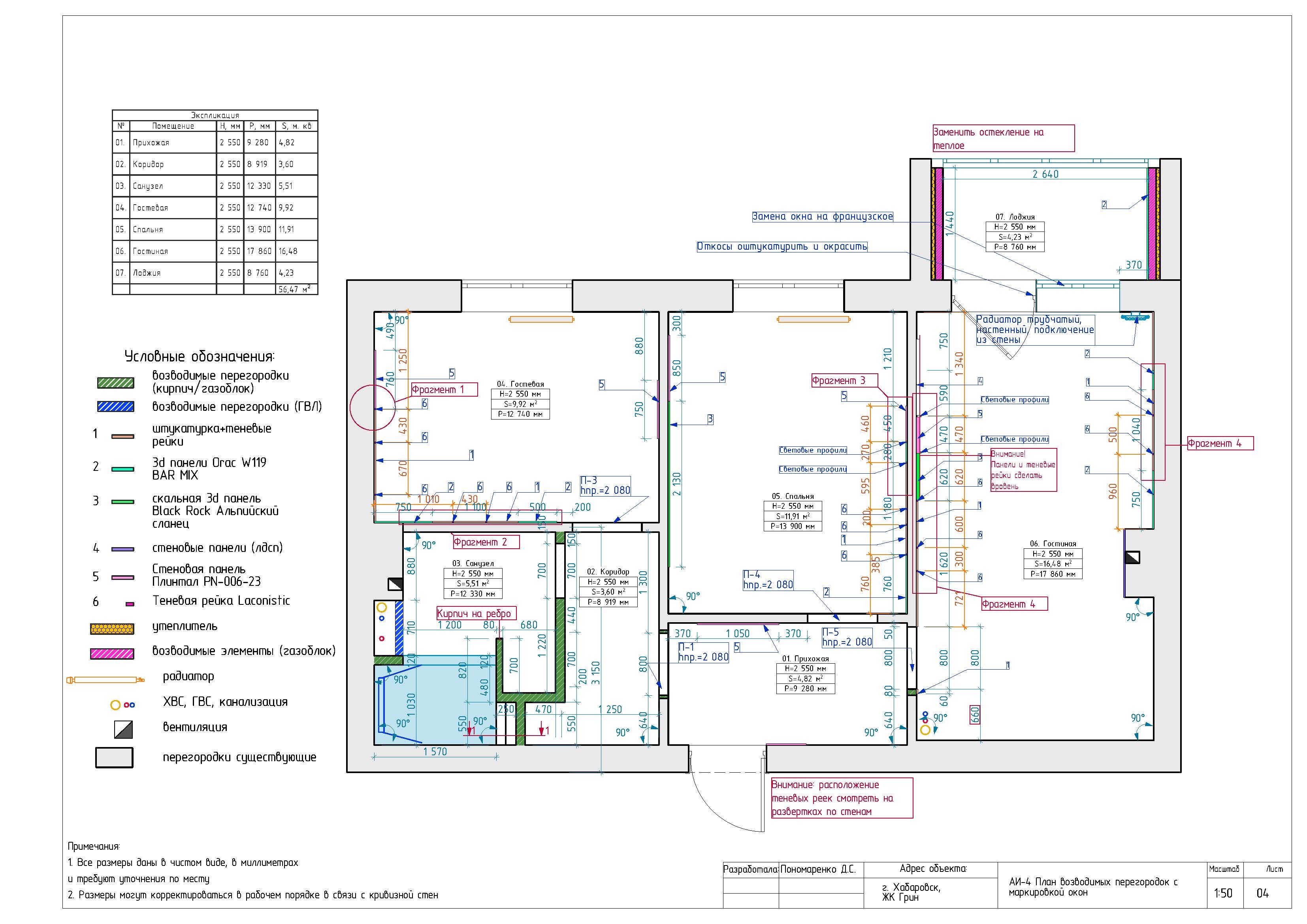
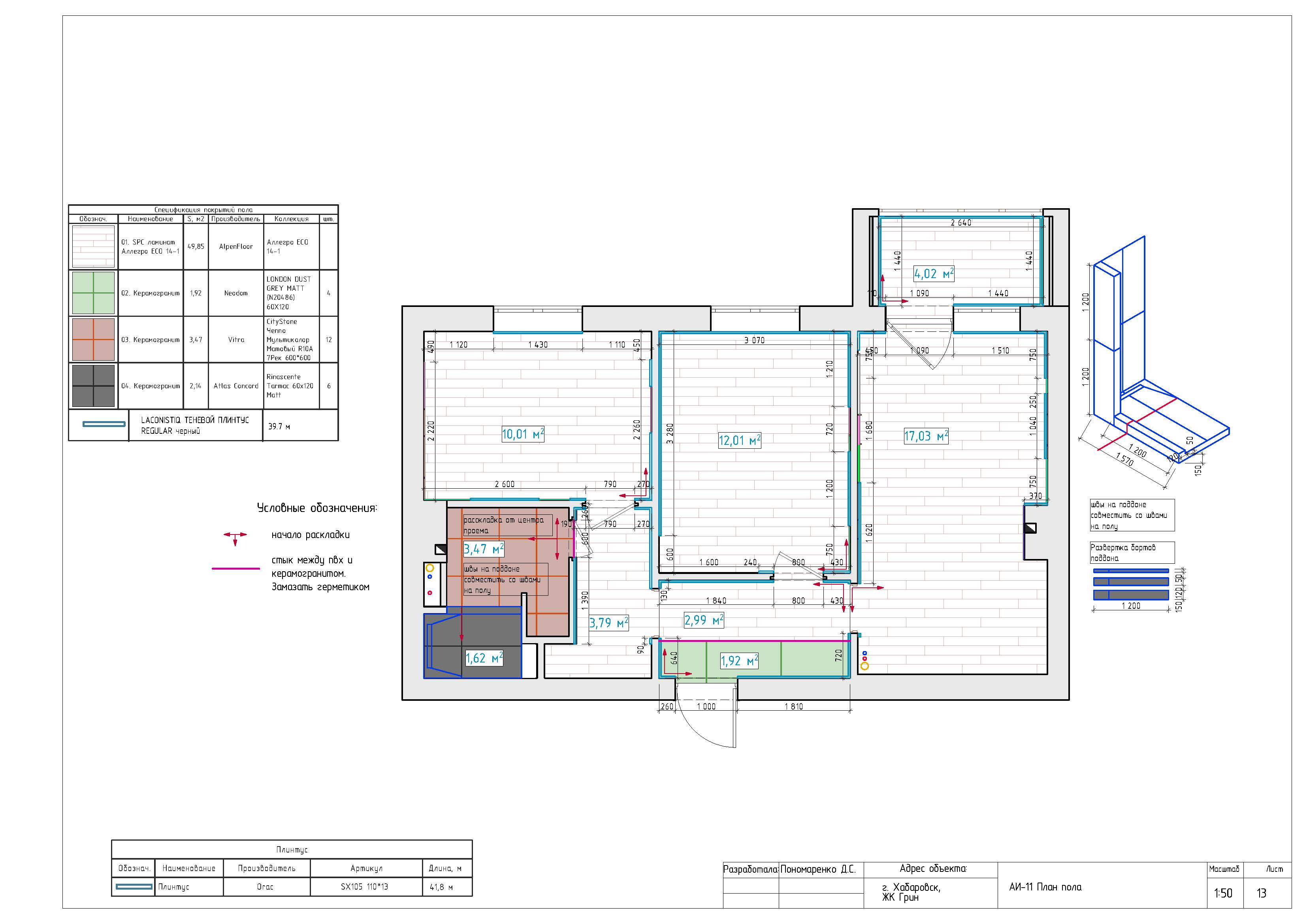
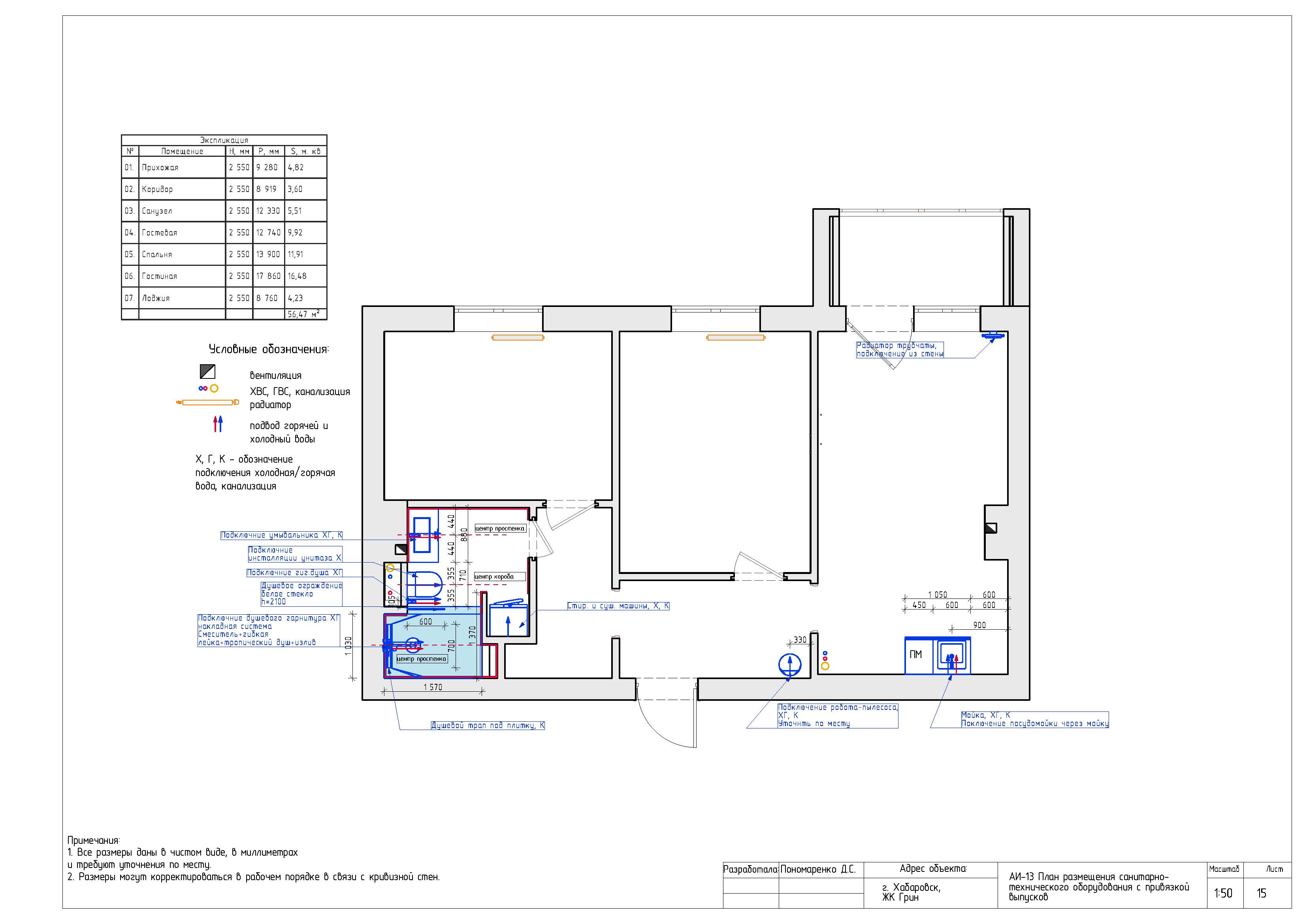
Рабочие чертежи для строителей, в которых по максимуму отображены сложные узлы и примыкания, различные сечения, электрика и освещение, привязка сантехнических выводов, чертежи мебели (оплачиваются отдельно).

Презентация проекта

Итог1_Страница_02.jpg
Итог1_Страница_04.jpg
Итог1_Страница_05.jpg
Итог1_Страница_10.jpg
Итог1_Страница_11.jpg
Итог1_Страница_12.jpg
Итог1_Страница_14.jpg
Итог1_Страница_18.jpg
Итог1_Страница_20.jpg
Итог1_Страница_24.jpg

Оценили проект:

0