Рейтинг: 82
не верифицирован
Всего отзывов: 0
  • Работ в портфолио: 32
  • Типовых услуг: 0
  • Работ на продажу: 0
  • Стаж работы: 3 года
  • Зарегистрирован: 08.03.2024
  • Образование: Среднее профессиональное
  • Юридический статус:Юридическое лицо
Была на сайте:

Разработка комплекса изделий мебели для кабинета руководителя в офисном помещении

Описание

Необходимо создать красивые и возможно необычные, но похожие друг на друга по стилистике объекты мебели - стол и стеллаж для офисного пространства.

Решение

Создание комплекта мебели - стеллажа и стола в одном стиле. Разработка необходимых чертежей и визуализаций. Выбор цветовой гаммы - бежевый/черный/коричневый/серый. Нейтральные, но приятные цвета не отвлекающие от работы.

Результат

В результате получилось создать необычный и освежающий дизайн мебели, который превратит кабинет руководителя в современное дизайнерское офисное пространство, цепляющее взгляд.

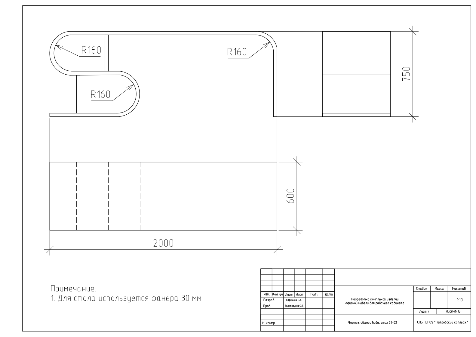
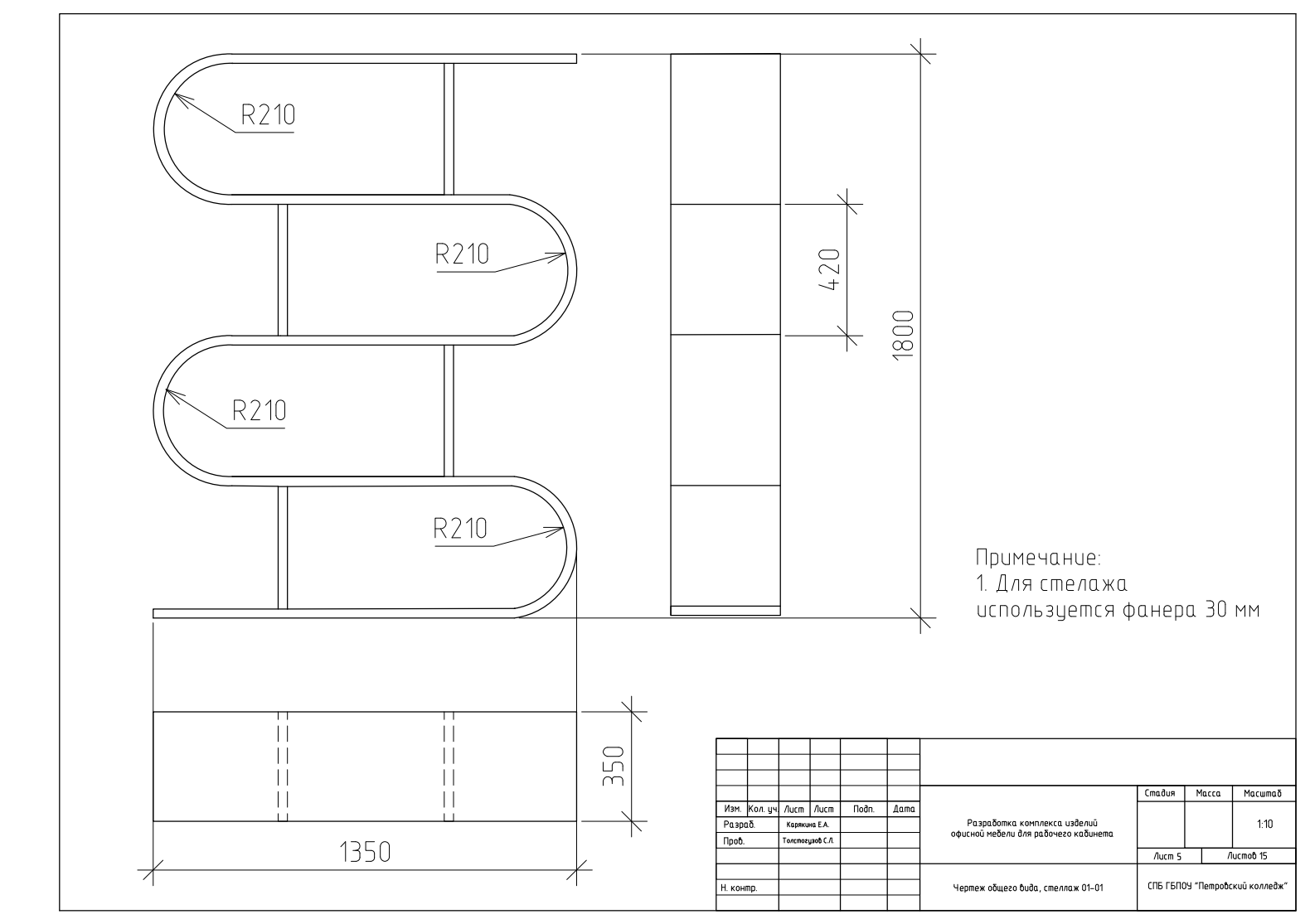
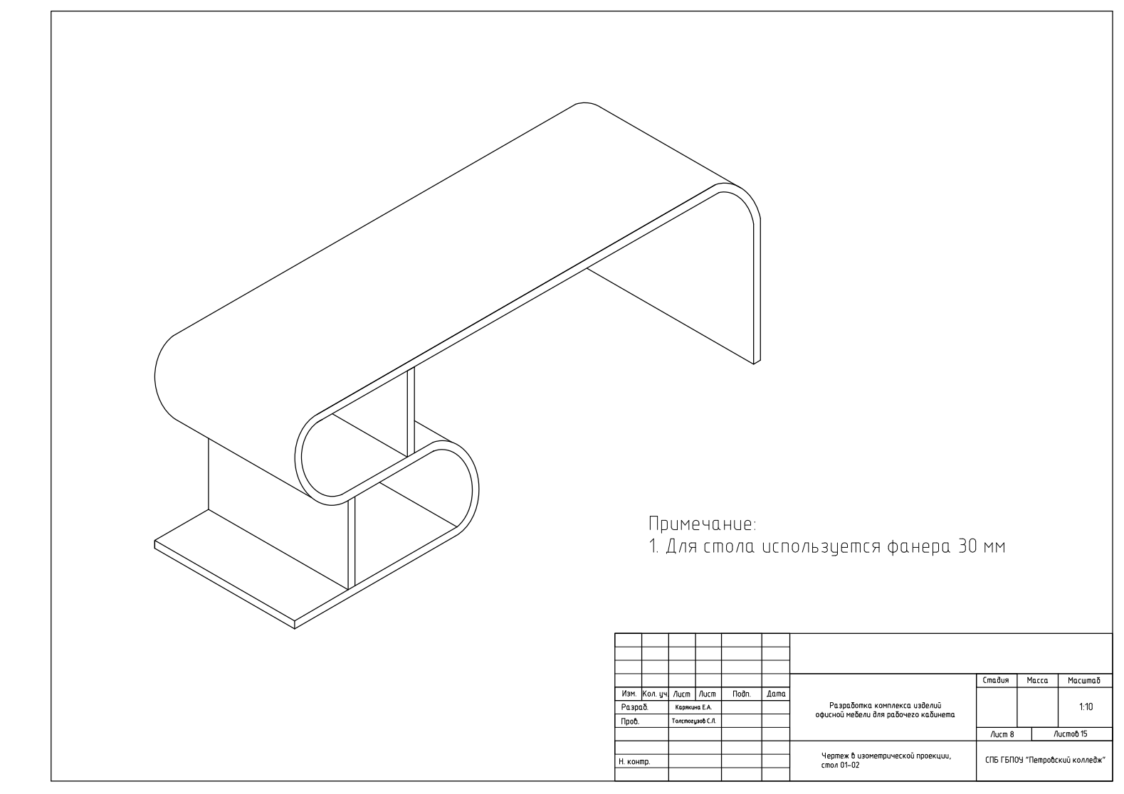
В ходе разработки были выполнены чертежи: обмерный план помещения, планировочное решение кабинета, чертежи мебели - чертежи общего вида + изометрия, чертеж разрезов, конструктивные схемы, чертежи выносных элементов, конструктивные схемы, а так же спецификации комплекса. В данном портфолио представлены некоторые чертежи (не все) и визуализации данного проекта.

Презентация проекта

2025-09-19_16-57-19.png
2025-09-19_16-59-58.png
2025-09-19_17-00-15.png
2025-09-19_17-00-30.png
2025-09-19_17-00-52.png
2025-09-19_17-11-20.png
2025-09-19_17-11-57.png
2025-09-19_17-11-48.png

Оценили проект:

0