Рейтинг: 63
не верифицирован
Всего отзывов: 0
  • Работ в портфолио: 3
  • Типовых услуг: 1
  • Работ на продажу: 0
  • Возраст: 23 года
  • Зарегистрирован: 24.08.2025
Был на сайте:

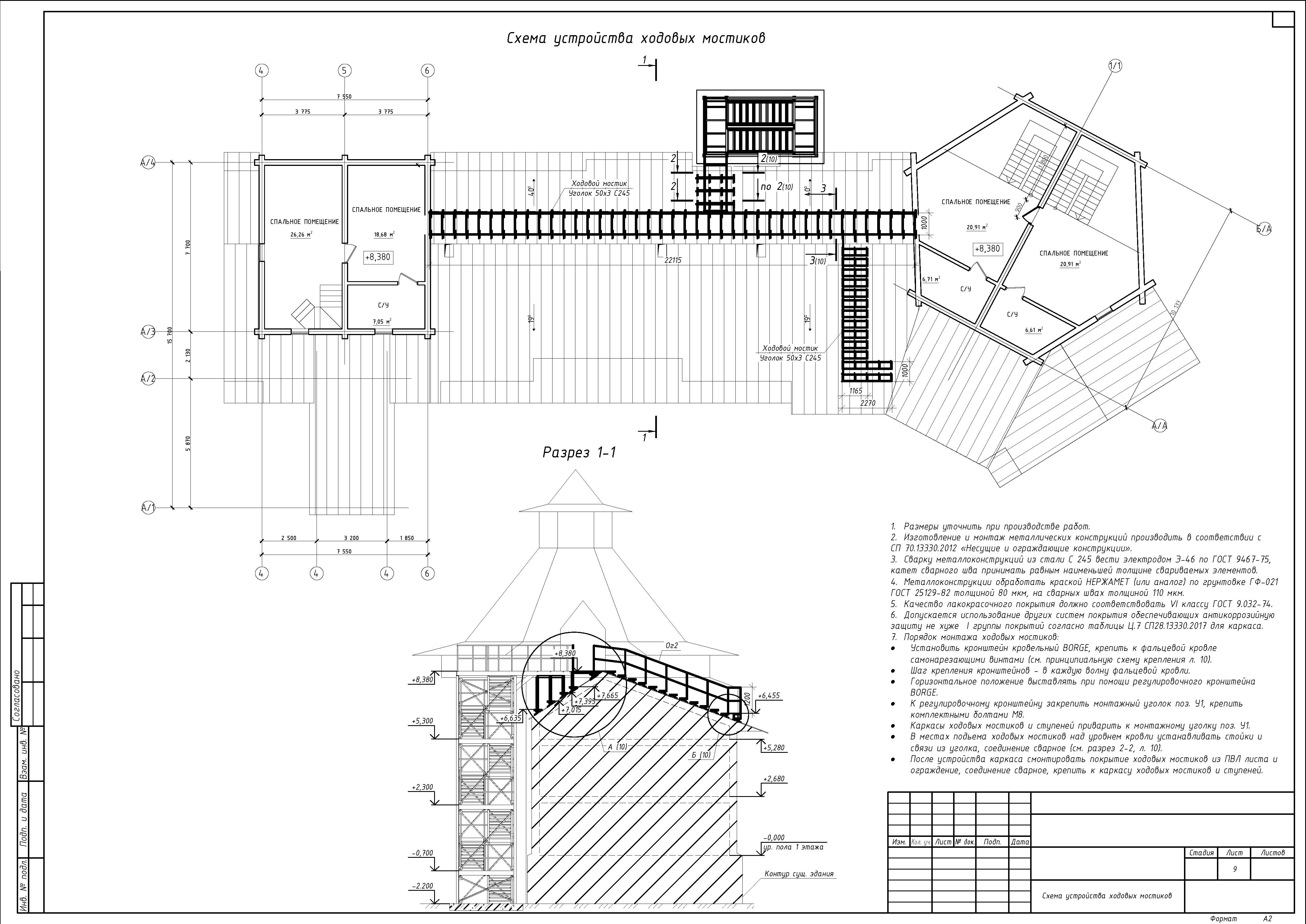
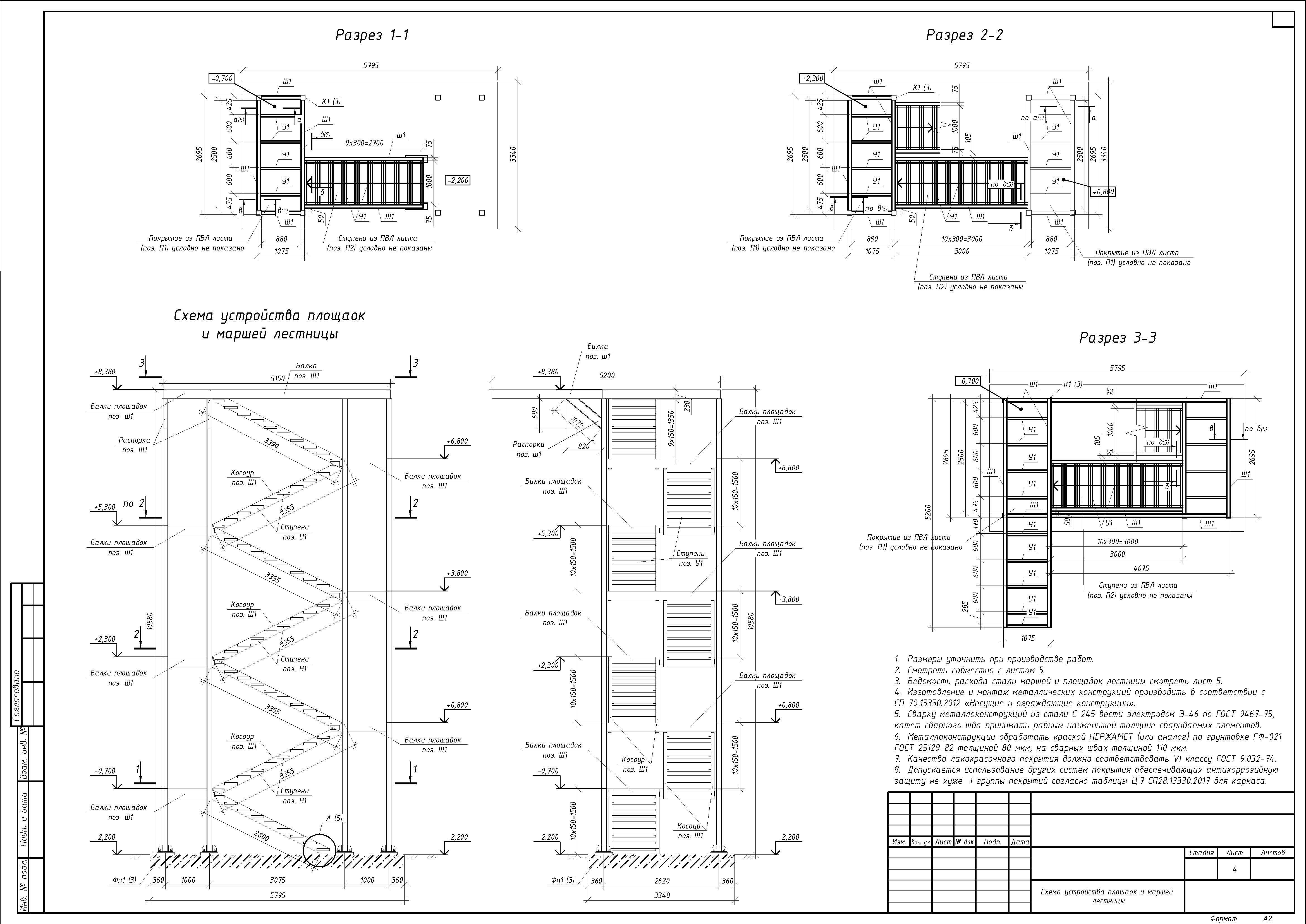
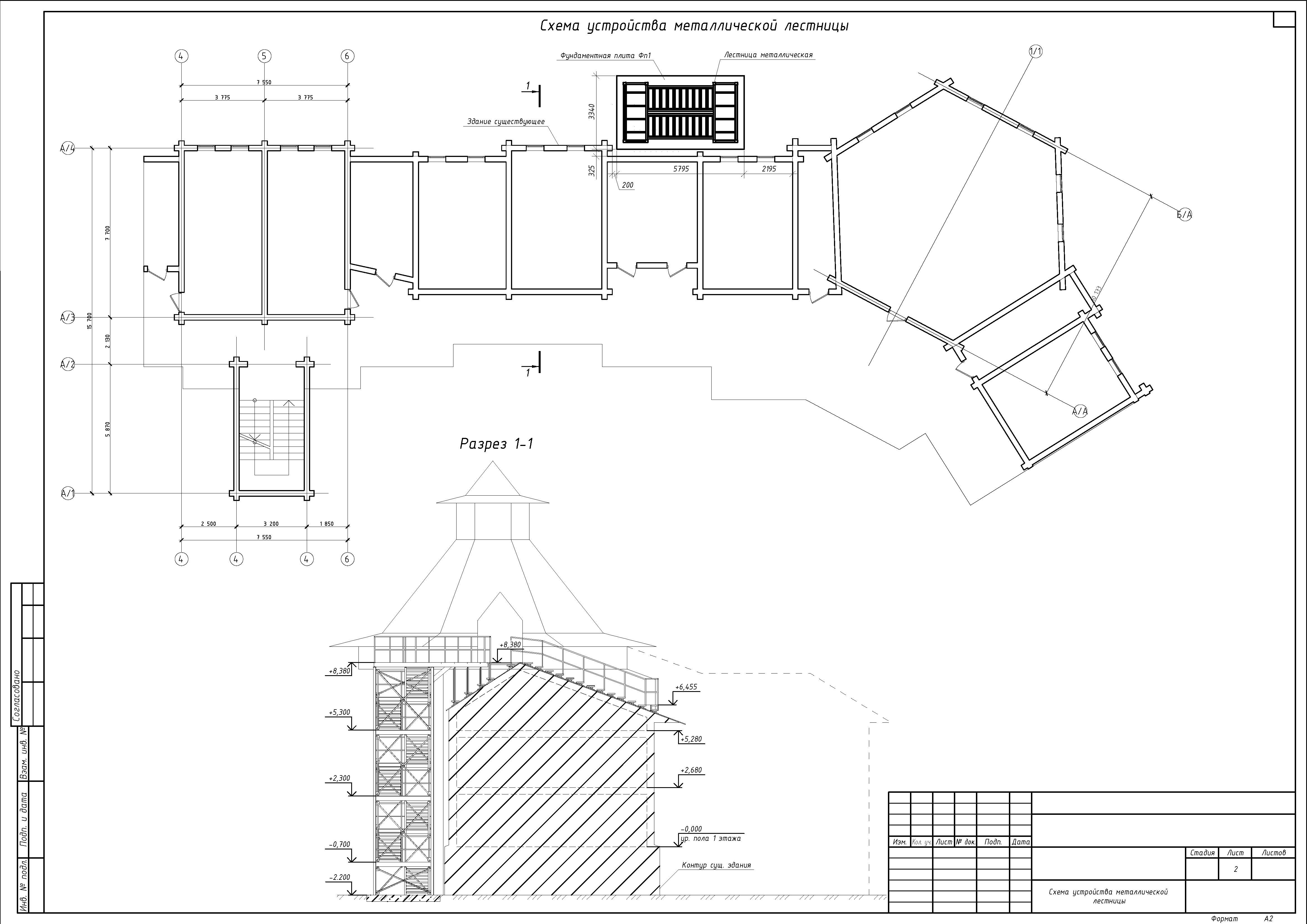
Устройство металлической лестницы

Используемые навыки:

Описание

Разработать металлическую лестницу

Решение

Разработан проект металлической лестницы

Презентация проекта

Металиическая лестница_Страница_02.jpg
Металиическая лестница_Страница_03.jpg
Металиическая лестница_Страница_04.jpg
Металиическая лестница_Страница_05.jpg
Металиическая лестница_Страница_06.jpg
Металиическая лестница_Страница_07.jpg
Металиическая лестница_Страница_09.jpg
Металиическая лестница_Страница_10.jpg
Металиическая лестница_Страница_11.jpg

Оценили проект:

0