ПРОСТРАНСТВО МЕНЯЕТ НАШУ ЖИЗНЬ

Валерия Разбаева razzbdesign

Рейтинг: 180
Паспорт верифицирован
Всего отзывов: 0
  • Работ в портфолио: 11
  • Типовых услуг: 0
  • Работ на продажу: 0
Была на сайте:

Визуализации и дизайн фасадов дома в Свири

Описание

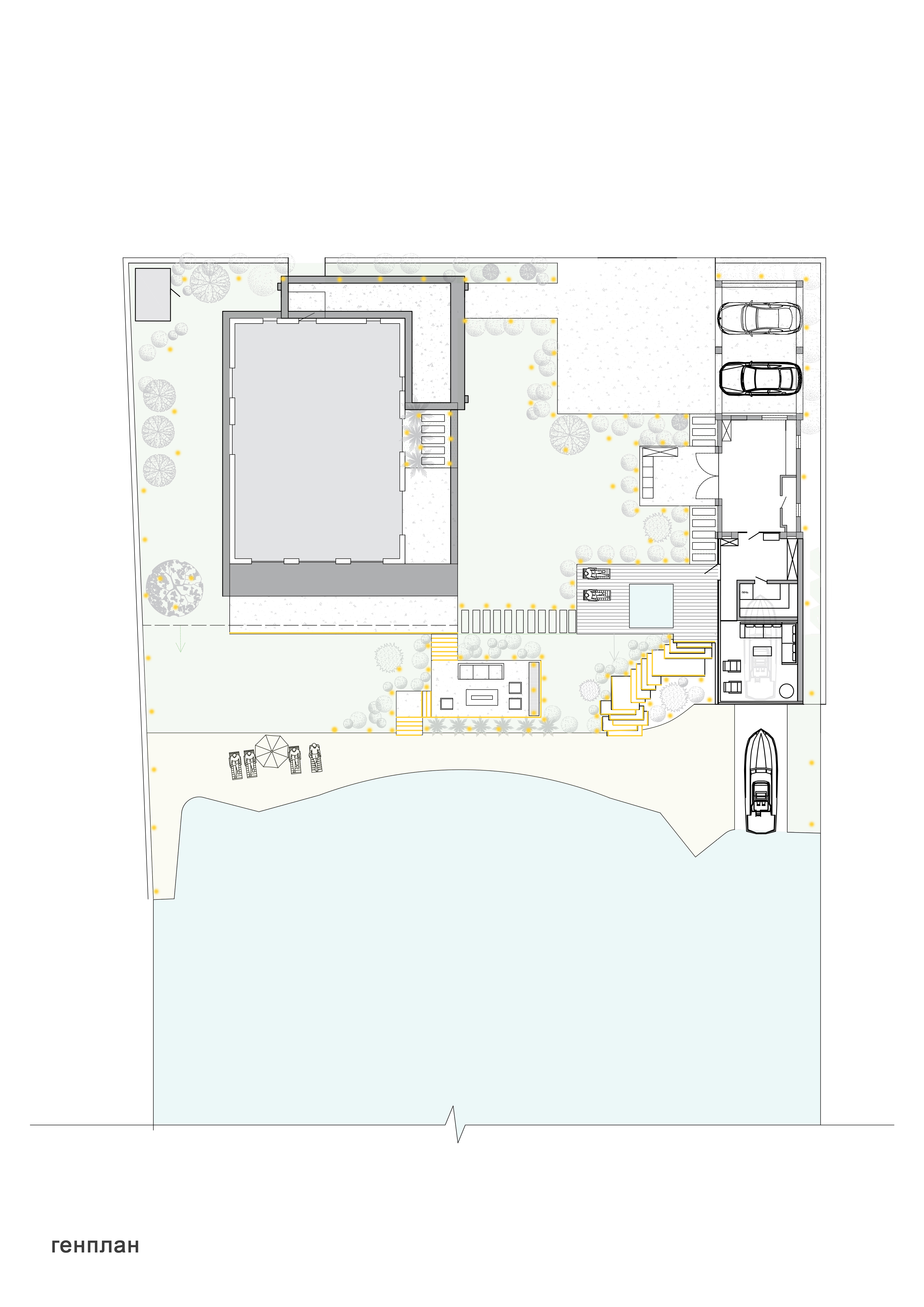
В данном проекте сделали концептуальный эскиз реконструкции здания, а также ландшафтную концепцию.

Презентация проекта

portf.jpg
portf2.jpg
1.JPG
3.JPG
6.JPG
10.JPG
схема освещения участка.jpg

Оценили проект:

0