Рейтинг: 1 504
не верифицирован
Всего отзывов: 1 0
Профессионализм: 10 Коммуникация: 10
Выполнил заданий: 4
  • Надежность: Использовал: Работал по Безопасной сделке
  • Работ в портфолио: 28
  • Типовых услуг: 1
  • Работ на продажу: 0
  • Стаж работы: 9 лет
  • Зарегистрирован: 24.01.2023
  • Образование: Магистратура
Был на сайте:

Проект индивидуального жилого дома в Подмосковье

Описание

Категория: концепция
Год: 2025
Статус: строительство
Авторы: mansarda.team, в соавторстве с Иннокентием Белых

Решение

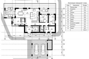
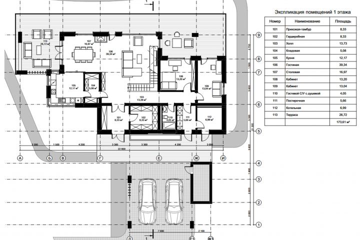
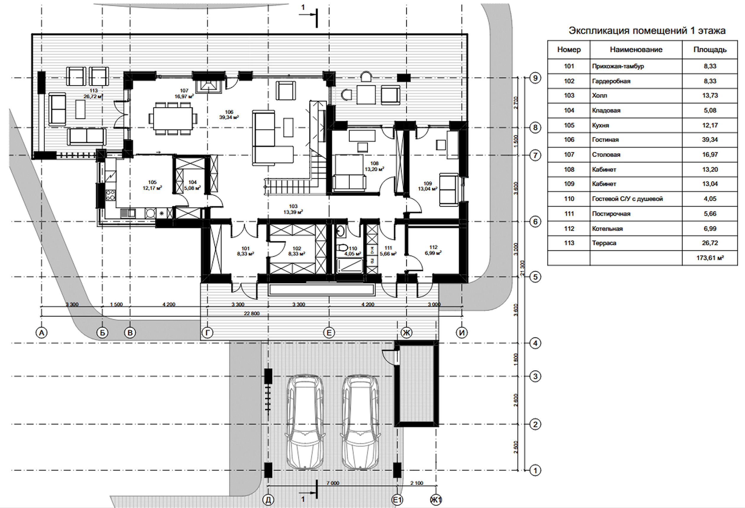
Здание расположено в соответствии с исходными данными, предоставленными Заказчиком. Заезд на участок предусмотрен с северной стороны. Расположение дома на участке учитывает отступы от границ участка, а также учитывает проходящую через участок границу прибрежной защитной полосы р. Клязьма. Решением генплана также предусмотрено расположение на участке гостевого дома и навеса на 2 машиноместа. С юго-западной стороны дома необходимо выполнить подсыпку для выравнивания с уровнем террасы.
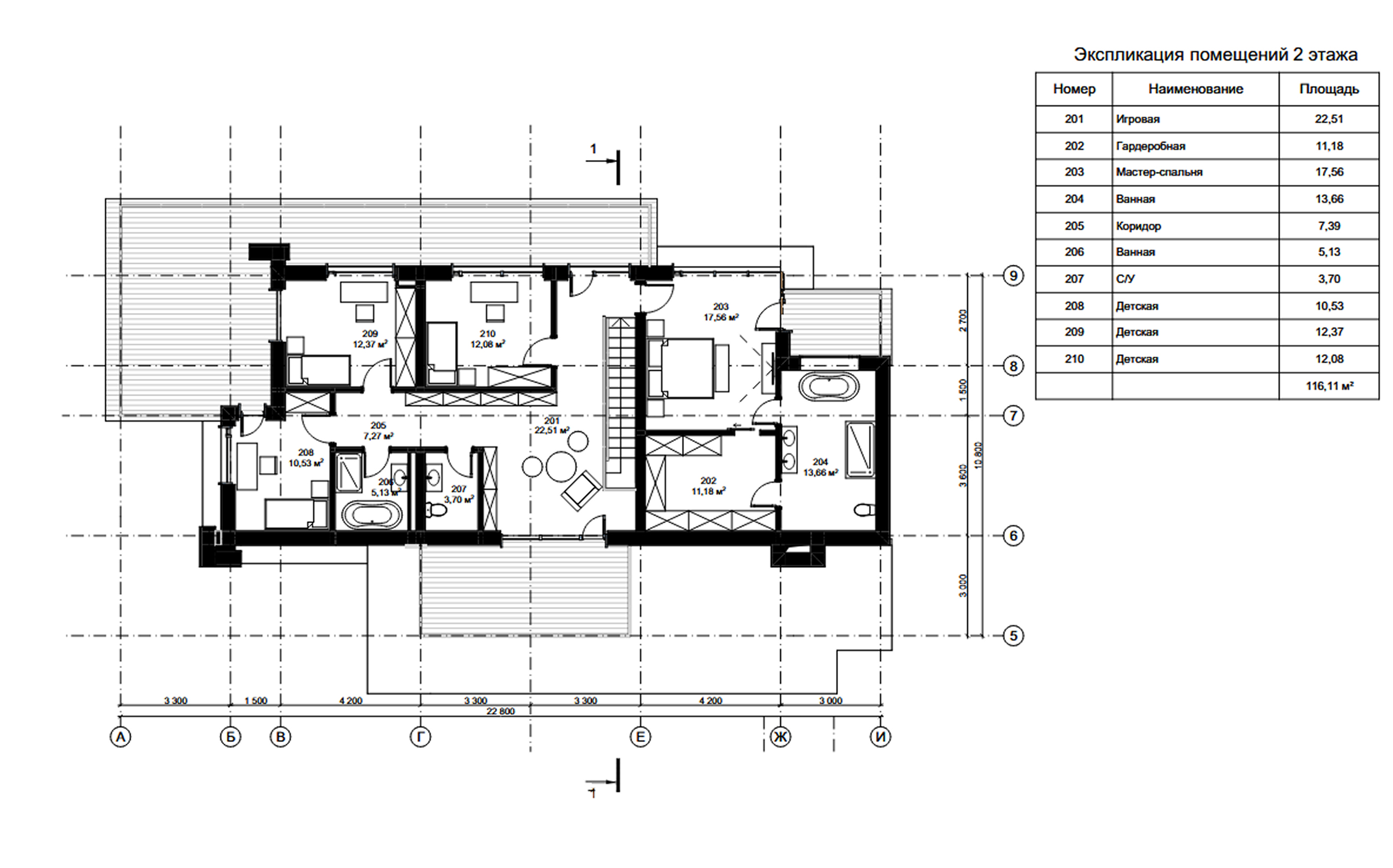
Планировочные и объёмо-пространственные решения соответствуют техническому заданию. Дом запроектирован двухэтажным. Из всех основных помещений открывается вид на юго-западную часть участка, в сторону реки. Также, из всех жилых помещений дома предусмотрен выход на террасу и балконы. Дом имеет плоскую не эксплуатируемую крышу с внутренним водоотведением.

Презентация проекта

05.jpg
06.jpg
07.jpg
01.jpg
04.jpg
03.jpg
02.jpg

Оценили проект:

0