Рейтинг: 52
не верифицирован
Всего отзывов: 0
  • Работ в портфолио: 2
  • Типовых услуг: 0
  • Работ на продажу: 0
  • Образование: Cпециалитет
  • Стаж работы: 39 лет
  • Тип занятости: Подработка
  • Юридический статус:Самозанятый
Был на сайте:

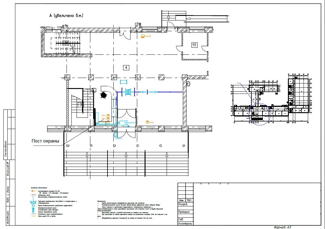
Сети связи ДС ххх

Описание

Разработка сетей связи в детском саду при реконструкции здания

Решение

Разработаны сети ЛВС, телефонизации, телевидения, проводного радиовещания

Результат

Заказчик принял проект. Далее сделал ещё несколько заказов на разработку проектов, в том числе СКУД, АПС, СОУЭ...

Ссылки на примеры реализации

 drive.google.com/file/d/1f9jj8ZDe_-vsPeWUqzXHwaNNN...

Презентация проекта

сс1.jpg
сс2.jpg
сс3.jpg
сс4.jpg
сс5.jpg
сс6.jpg

Оценили проект:

0