Создаю возможности

АЛЕКСАНДР ФЕДЧЕНКО bfcgroop

Рейтинг: 51
не верифицирован
Всего отзывов: 0
  • Работ в портфолио: 1
  • Типовых услуг: 1
  • Работ на продажу: 0
  • Возраст: 46 лет
  • Зарегистрирован: 16.06.2025
Был на сайте:

Технологический и Дизайн проект для рыбного магазина с последующим запуском и сопровождением

Описание

Наша задача заключалась в том, чтобы из торгующего инстаграм аккаунта создать офлайн бизнес под ключ. Была создана концепция магазина а именно средний и средний плюс сегмент рынка, продуктовая линейка свежая рыба и морепродукты. За основу взят уникальный нейминг инстаграм аккаунта и вокруг него сформирован бренд имеющий акцент личностного бренда. Необходимо было спроектировать пространство магазина с уже известными размерами помещения, выстроить все технологические процессы (загрузка сырья, обработка, учет продукции, маркировка, размещение в торговом зале и процесс обслуживания покупателей) далее необходимо было создать Логотип и Дизайн проект магазина. Технического задания как такового не было но было понимание как сочетать образ заказчицы и будущего магазина.

Решение

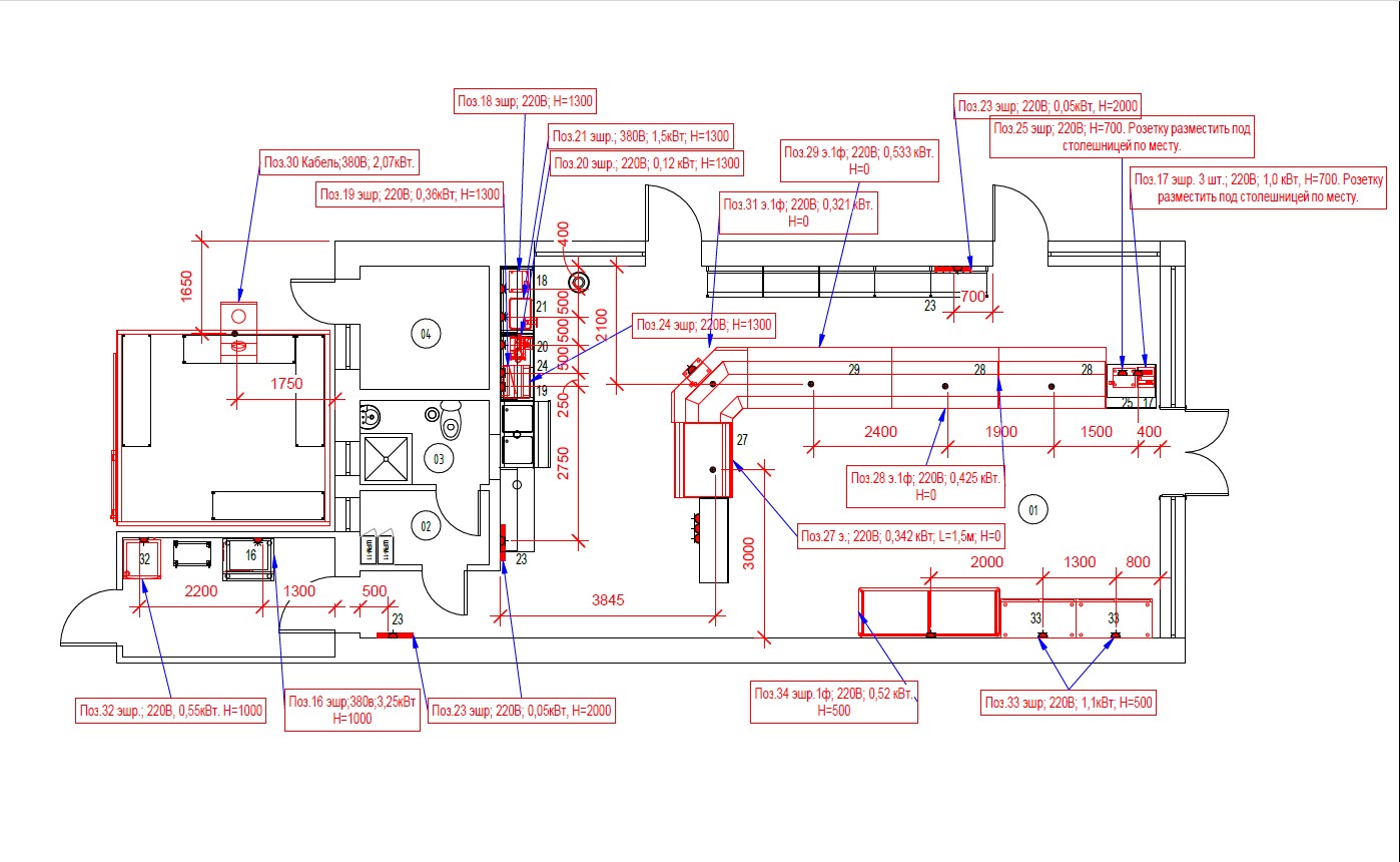
При посещении объекта на стадии возведения стен, были произведены замеры всех необходимых параметров. В течении двух недель был создан технологический проект с параллельным согласованием номенклатуры оборудования и ключевых зон магазина. На основании проекта, подрядчики выполнили монтаж коммуникаций для подключения будущего оборудования и с учетом всех технологических потоков.
Параллельно с этим шла работа дизайнеров по созданию Бренд Бука с логотипом и Дизайн проект магазина включая экстерьер. Были применены современные материалы и решения для подчеркивания ценового сегмента продукции. Частично использованы материалы премиального класса включая цвета и световую экспозицию внутреннего освещения. Поскольку проект несет медийный характер и часто проводятся съемки контента нужно было сочетать продуктовую выкладку с метом съемки. Кроме того на этапе отделки помещения был сформирован график проекта который включал в себя основные процессы подготовки и запуска объекта расписанный по времени, схеме выполнения, наличия подрядчика с техническим заданием и в итоге датой запуска.
Дополнительные процессы включали в себя, автоматизацию торговли, подбор и обучение персонала, заказ униформы, заказ и в последствии производство наружных вывесок и согласование с органами контроля всех необходимых документов и регистраций.

Результат

В результате был создан уникальный магазин морепродуктов находящийся локально в г.Лабинск, Краснодарский край. Заказчик получил готовый формат магазина с всеми необходимыми составляющими и возможностью тиража по стране. Появилась возможность и пространство для съемки профессионального контента, что привлекло внимание новых покупателей и позволило значительно увеличить оборот. Появились новые поставщики так как магазин поднял статус продавца, увеличился ассортимент и появилась возможность создания собственного продукта с собственной этикеткой.

Ссылки на примеры реализации

 www.instagram.com/forelkina.mag?igsh=NWQ2Y2p0eW5xN...

Презентация проекта

Скриншот 16-06-2025 120746.jpg
Скриншот 16-06-2025 120618.jpg
Скриншот 16-06-2025 121014.jpg
Скриншот 16-06-2025 121121.jpg
Скриншот 16-06-2025 121144.jpg
Скриншот 16-06-2025 121203.jpg
Скриншот 16-06-2025 121224.jpg

Оценили проект:

0