«Создаю пространства, вдохновляющие на жизнь»

Сергей Кушнир Kushnir_Sergey

Рейтинг: 4 625
не верифицирован
Всего отзывов: 9 0
Профессионализм: 10 Коммуникация: 10
Выполнил заданий: 14
  • Надежность: Использовал: Работал по Безопасной сделке
  • Активность:
  • Работ в портфолио: 51
  • Типовых услуг: 0
  • Работ на продажу: 0
  • Образование: Cпециалитет
  • Стаж работы: 18 лет
  • Тип занятости: Полный фриланс
  • Юридический статус:ИП
Был на сайте:

«Лесной домик Woodhouse: Проект глэмпинг-кабины для уединённого отдыха»

Используемые навыки:

Описание

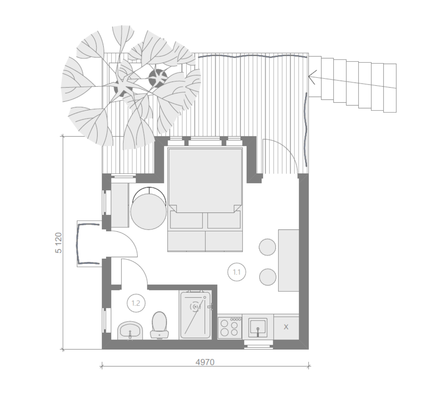
Название проекта: Лесной домик Woodhouse: Архитектурный проект глэмпинг-кабины для уединённого отдыха

Тип проекта: Архитектурное проектирование, , 3D-визуализация

Статус проекта: Завершен, реализован.

Адрес реализации: Московская область, Дмитровский район, дер. Свистуха.

Решение

Общая цель проекта:
Разработка архитектурного проекта и 3D-визуализации комфортабельной и эстетически привлекательной глэмпинг-кабины Woodhouse, предназначенной для уединённого отдыха на природе. Основной целью было создать функциональное и уютное пространство, интегрированное в природный ландшафт Московской области, обеспечивающее высокий уровень комфорта для гостей при минимальном воздействии на окружающую среду.

Задачи проекта:

Разработка концепции: Создание уникальной концепции глэмпинг-кабины, отвечающей требованиям современного эко-отдыха и комфорта.
Архитектурное проектирование: Полный цикл проектирования домика, включая планировочные решения, фасады, конструктивные элементы и интеграцию инженерных систем.
Оптимизация пространства: Максимально эффективное использование небольшой площади для размещения всех необходимых зон: спальни, кухонной зоны, санузла и зоны отдыха.
Интеграция с природой: Создание проекта, который гармонично вписывается в лесной ландшафт, сохраняя естественную растительность (например, проход дерева через террасу).
Выбор материалов: Подбор экологически чистых и долговечных материалов, преимущественно натурального дерева, для создания теплой и природной атмосферы.
Визуализация: Создание высококачественных 2D-планов и 3D-визуализаций для демонстрации внешнего вида и внутреннего пространства домика.
Моя роль в проекте:
Архитектор-проектировщик, 3D-визуализатор. Я отвечал за полный цикл разработки проекта – от первоначальной концепции и эскизов до создания детальных рабочих чертежей и фотореалистичных 3D-визуализаций, позволяющих клиенту увидеть будущий объект в мельчайших деталях.

Используемые инструменты и технологии:

Проектирование: ArchiCAD
3D-моделирование и визуализация:
Постобработка: Adobe Photoshop
Детали реализации и сложности:

Проект Woodhouse был разработан с учётом всех особенностей участка в Дмитровском районе, дер. Свистуха, Московской области. Одной из ключевых задач стало гармоничное встраивание домика в существующий лесной массив. Это потребовало тщательной проработки расположения фундамента и террасы, чтобы сохранить окружающие деревья, в частности, интегрировать одно из них в конструкцию террасы.

Внутреннее пространство, несмотря на компактные размеры (примерно 4.97 x 5.12 м), было спроектировано для максимальной функциональности и комфорта. В нём предусмотрена просторная спальная зона с двуспальной кроватью, компактная, но полноценная кухня с варочной панелью и мойкой, а также современный санузел с душевой. Большая площадь остекления на главном фасаде обеспечивает максимальное проникновение естественного света и создаёт ощущение единения с природой, стирая границы между интерьером и экстерьером.

Сложностью было оптимальное зонирование пространства, чтобы оно не казалось перегруженным, и при этом отвечало всем требованиям комфортного проживания. Это было достигнуто за счет продуманной расстановки мебели, использования светлых тонов в отделке и акцента на вертикальное остекление, которое визуально увеличивает объем.

Результат

Создан полностью функциональный и эстетически завершенный архитектурный проект глэмпинг-кабины, отвечающий всем требованиям клиента.
Реализовано уникальное планировочное решение, включающее спальню, мини-кухню и санузел на площади менее 26 кв.м., что обеспечивает высокий уровень комфорта.
Достигнута гармоничная интеграция объекта в природный ландшафт, что подтверждается успешной реализацией проекта на месте.
Высококачественные 3D-визуализации позволили клиенту получить полное представление о будущем объекте ещё до начала строительства, сократив количество правок на этапе реализации.
Проект получил положительные отзывы от клиента, который остался полностью удовлетворён итоговым результатом, что привело к успешному функционированию глэмпинг-домика в Московской области.

Ссылки на примеры реализации

 houseforwedding.ru/wood-house

Презентация проекта

Лесной домик_4.jpg
Screenshot_2025_06_03-34.jpg
Лесной домик_3.jpg
Screenshot_2025_04_18-1.png

Оценили проект:

0