Рейтинг: 160
не верифицирован
Всего отзывов: 0
  • Работ в портфолио: 1
  • Типовых услуг: 1
  • Работ на продажу: 0
  • Зарегистрирован: 03.06.2025
Была на сайте:

Чертежи для дизайн-проекта квартиры

Используемые навыки:

Описание

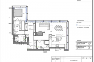
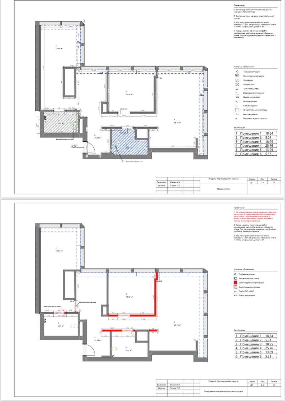
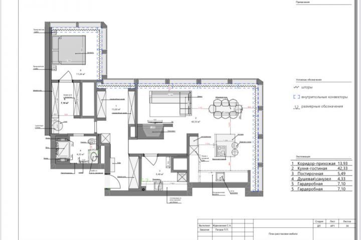
Клиент обратился с заказом на создание базовых чертежей для своего дизайн проекта. Основная задача заключалась в детальной разработке и представлении следующих элементов:

1. Обмерный план

2. План демонтажа

3. План монтажа

4. План переустройства

5. Планировочное решение

Решение

Исходя из информации обмерного плана и выбранного заказчиком планировочного решения были выполнены чертежи.
Клиенту предоставлены готовые планы, с учётом его пожеланий и функциональных требований. Задача требовала внимательности к деталям, понимания пространственных решений, что и было выполнено в наилучшем виде для их дальнейшего обсуждения и реализации.

Результат

Результат работы над проектом оказался весьма успешным, и готовые чертежи были представлены клиенту в формате, удобном для дальнейшего использования.

На практике все элементы чертежей взаимосвязаны и направлены на создание функционального и эстетически приятного пространства. Клиент сможет легко реализовать свою концепцию, опираясь на разработанные планы. Этот подход дает уверенность в том, что проект будет реализован быстро и эффективно.

Презентация проекта

IMAGE 2025-06-03 21:36:52.jpg
IMAGE 2025-06-03 21:36:47.jpg
IMAGE 2025-06-03 21:37:05.jpg

Оценили проект:

0