Рейтинг: 52
не верифицирован
Всего отзывов: 0
  • Работ в портфолио: 2
  • Типовых услуг: 0
  • Работ на продажу: 0
  • Зарегистрирован: 01.06.2025
Была на сайте:

дизайн интерьера для рантье

Описание

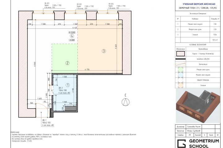
Апартаменты в историческом центре Петербурга
Стиль лофт-богема в особняке XIX века
Акцент- стена царского кирпича, освещаемая естественным светом от трёх высоких окон
Кухня-полуостров с высокой барной стойкой зонирует пространство гостиной и спальни
Открытая гардеробная растворяется на фоне акцентной стены

Решение

подготовка и подписание договора
составление тз
обмеры
разработка чертежей
переговоры с бригадой ремонтников и подрядчиков
составление сметы
авторский надзор

Результат

срок проекта 7 месяцев + в бюджете

Презентация проекта

Michurinskiy web (11 of 57).jpg

Оценили проект:

0