Расширение РУ в ПСт
Для полной функциональности этого сайта необходимо включить JavaScript.
Краснозаводск
Профессионал остаётся профессоналом
Роман Хабибрахманов
swapon
Рейтинг: 65
Паспорт верифицирован
Всего отзывов:
0
Работ в портфолио:
5
Типовых услуг:
1
Работ на продажу:
0
Возраст:
45 лет
Стаж работы:
17 лет
Зарегистрирован:
28.05.2025
Образование:
Cпециалитет
Юридический статус:
Самозанятый
Был на сайте:
2025-11-01 в 09:29
9265953069
inbox
Предложить работу
Добавить в избранное
Добавить рекомендацию
Пожаловаться
Инженерия
27
0
Расширение РУ в ПСт
Описание
Решение
Результат
Соавторы
Презентация проекта
Примеры реализации
Описание
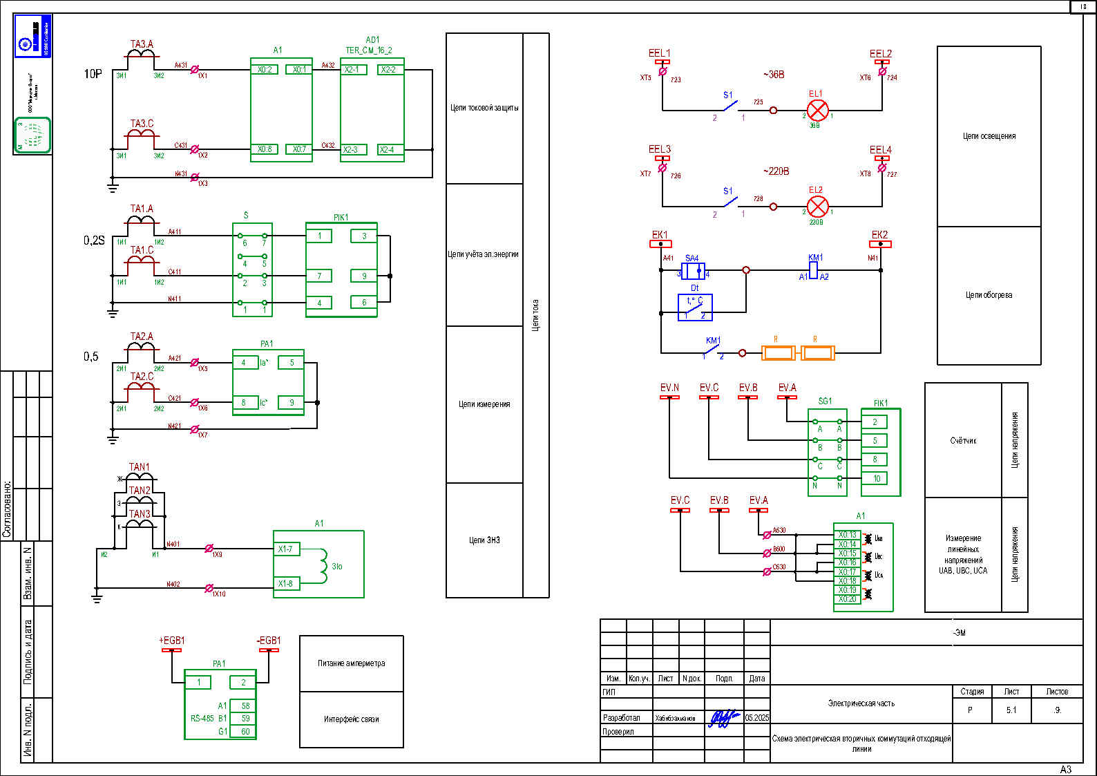
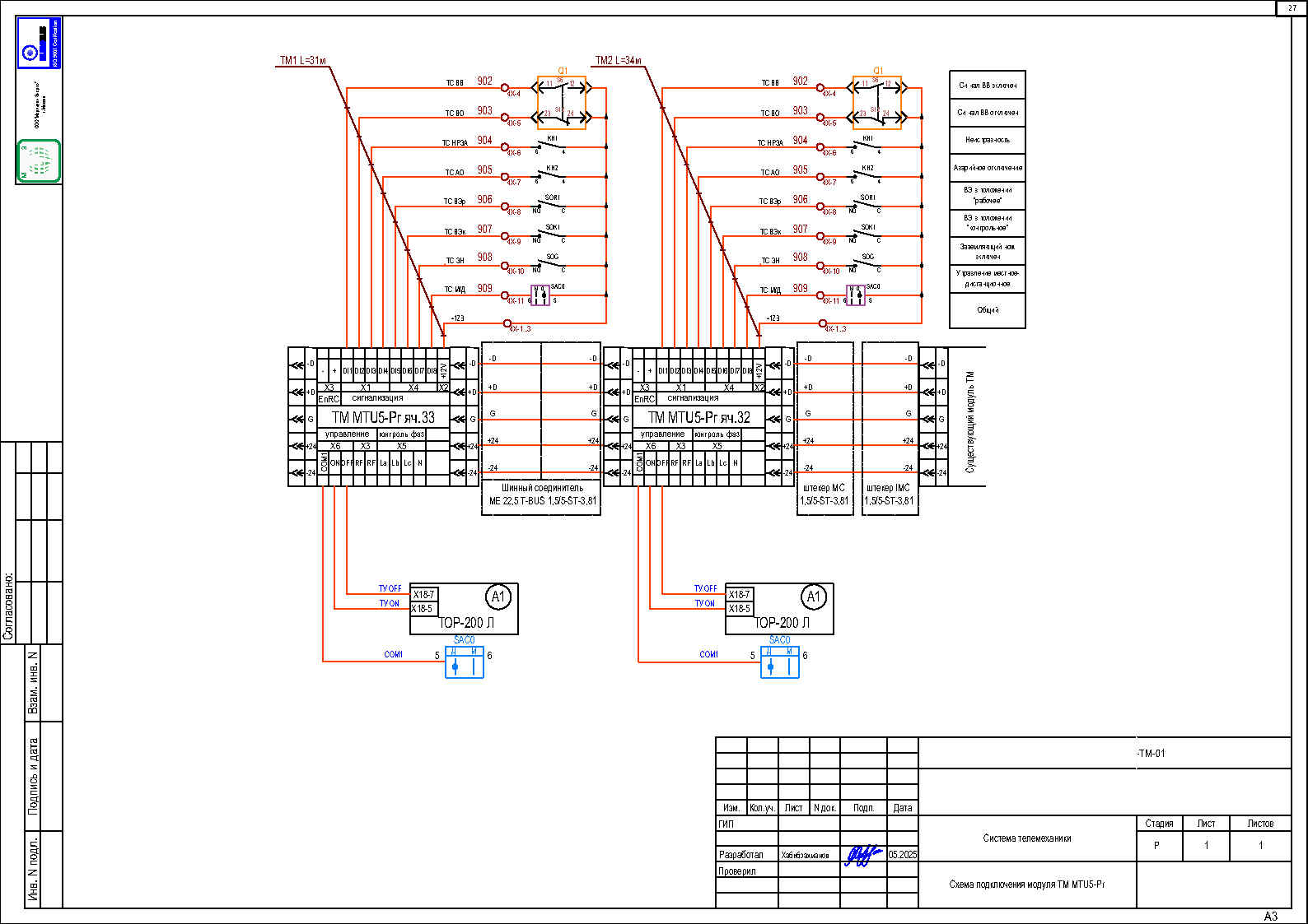
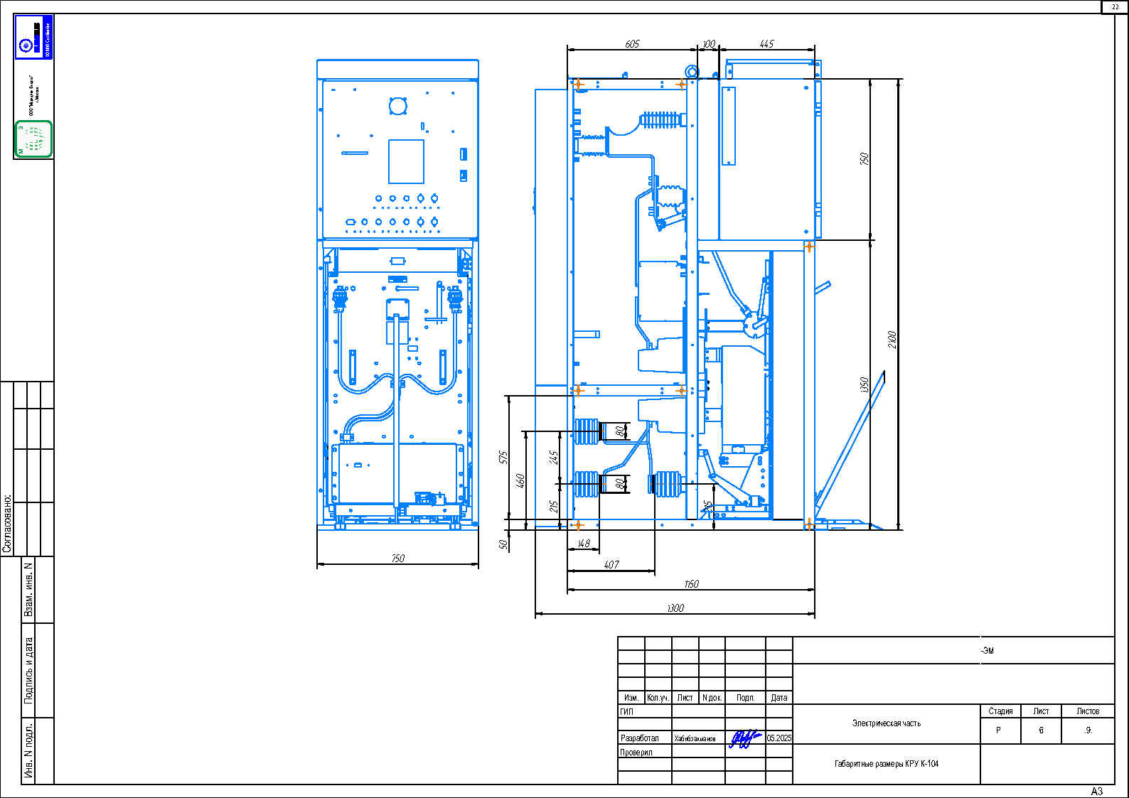
Установка 2х КРУ К-104 на СШ ПСт
Презентация проекта
Оценили проект:
0
×
Оценили проект
×
Авторизация
Для того чтобы оценивать проекты, вам нужно войти на сайт
Другие проекты
Все проекты
Строительство КТП
Раздел ЭОМ для торгового центра 2016 год
Магазин "5"
FREELANCE.RU
Toggle navigation
Нанять фрилансера
Заказчику
Каталог фрилансеров
Каталог PRO
Каталог студий
Каталог услуг
Каталог работ
Виртуальный HR
Умный поиск
Провести конкурс
Разместить задание
Найти работу
Найти задание
Присоединиться к команде
Участвовать в конкурсе
Предложить услугу
Вход
Разместить задание
▲