Чертежи и 3D-модели для производства - под ключ

Станислав Селин stasselin

Рейтинг: 60
не верифицирован
Всего отзывов: 0
  • Работ в портфолио: 1
  • Типовых услуг: 0
  • Работ на продажу: 0
  • Образование: Бакалавриат
  • Стаж работы: 8 лет
  • Тип занятости: Полный фриланс
  • Юридический статус:Самозанятый
Был на сайте:

Деталирование

Используемые навыки:

Описание

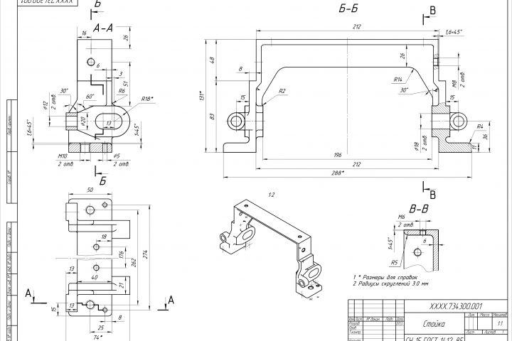
Клиент поставил задачу подготовить полную конструкторскую документацию для 4-х изделий. Необходимо было разработать 3D-модели и на их основе создать сборочные и деталировочные чертежи, соответствующие стандартам ГОСТ. Также требовалось соблюдение допусков и обеспечение совместимости деталей в сборке.

Решение

Работа выполнена в САПР-системе КОМПАС-3D. На первом этапе были созданы 3D-модели всех компонентов. Далее выполнены сборки с проверкой на корректность сопряжений. После этого оформлены чертежи деталей и сборочные чертежи с полным комплектом обозначений, размеров, спецификаций. Все чертежи приведены к единым стандартам оформления, проверены на читаемость и соответствие техническому заданию.

Результат

Клиент получил полный комплект инженерной документации, пригодной как для передачи в производство, так и для внутренней техдокументации. Все чертежи были приняты с первого раза без правок. Заказчик отметил высокую точность выполнения, соблюдение сроков и технически грамотное оформление. Документация уже используется в производственном цикле.

Презентация проекта

1_2_4_7_merged_page-0001.jpg
1_2_4_7_merged_page-0002.jpg
1_2_4_7_merged_page-0003.jpg
1_2_4_7_merged_page-0004.jpg

Оценили проект:

0