Графический дизайнер / Архитектор

Медина Мусаева musaevamedina

Рейтинг: 164
не верифицирован
Всего отзывов: 0
  • Работ в портфолио: 5
  • Типовых услуг: 0
  • Работ на продажу: 0
  • Возраст: 23 года
  • Стаж работы: 6 лет
  • Зарегистрирован: 01.05.2025
  • Образование: Бакалавриат
Была на сайте:

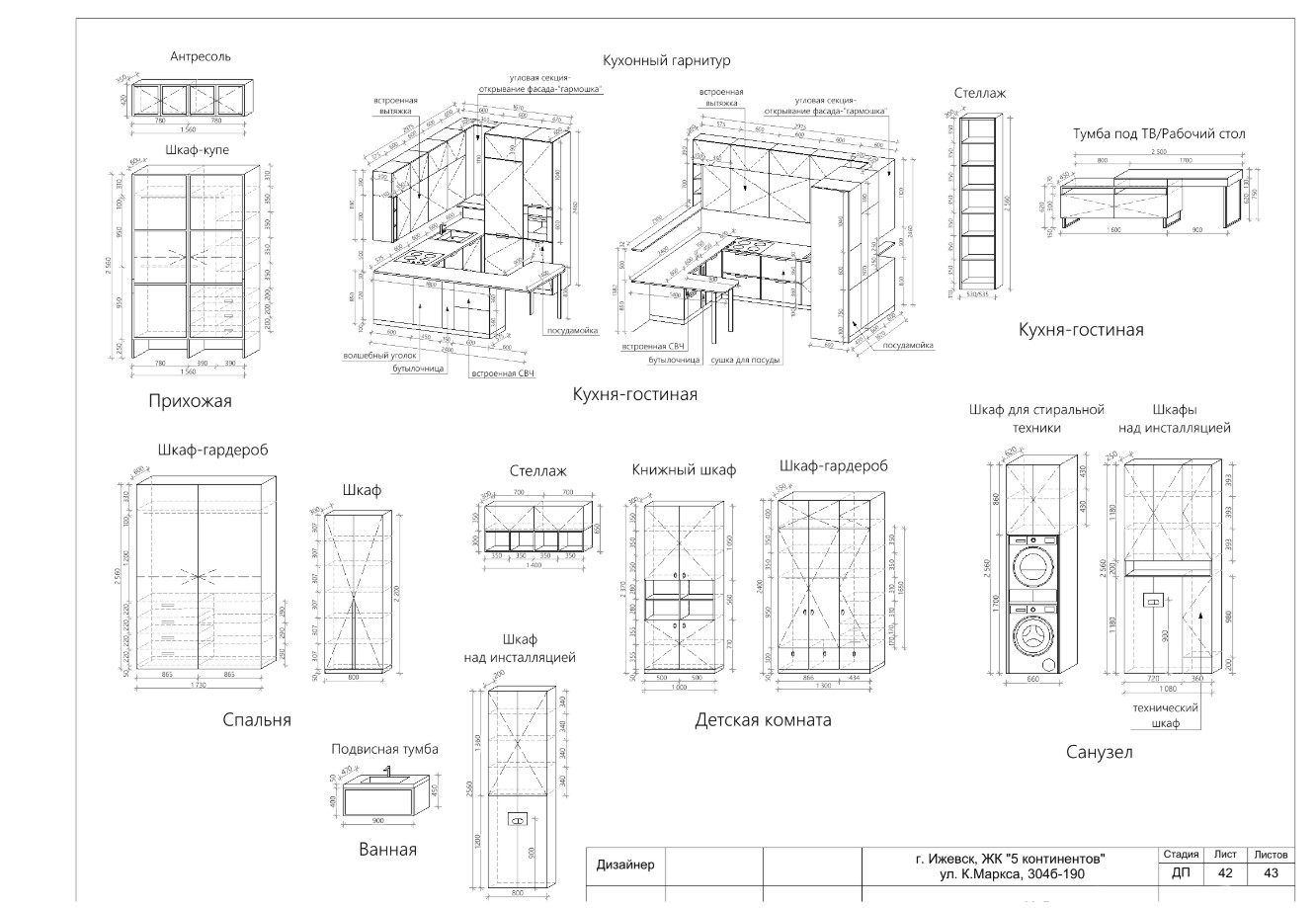
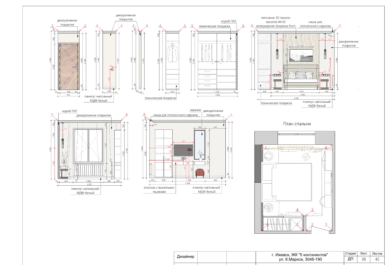
Схемы разверток интерьеров

Описание

Развертки интерьеров представляют собой чертежи, на которых каждая стена изображена отдельно в виде плоской фигуры. Они играют важную роль в дизайне и строительстве, предоставляя детализированную информацию, необходимую для реализации проекта.

Зачем нужны развертки:
1) Для строителей: Развертки помогают строителям понять, как технически правильно воплотить дизайн. Они предоставляют детализированные инструкции по монтажу и отделке.
2)Для заказчика: Развертки позволяют заказчику наглядно увидеть, как будет выглядеть каждая стена в интерьере, включая расположение мебели, декора и других элементов.
3)Контроль качества: Развертки помогают заказчику контролировать процесс ремонта, особенно если не был заказан авторский надзор.

Решение

Преимущества разверток:
1) Детализация: Развертки показывают все нюансы отделки, расположение розеток, выключателей и мебели.
2) Эстетика: Добавление мелких деталей, таких как вазы, книги и декоративные элементы, делает развертки более привлекательными и понятными для заказчика.
3) Решение спорных вопросов: Развертки помогают устранить двусмысленность в том, как должна выглядеть каждая стена, и решить вопросы, которые трудно учесть на обычных планах.

Результат

Примеры использования:
1) Сложные покраски и декор: Развертки особенно полезны при использовании сложного декора, такого как молдинги или карнизы.
2) Сантехника и электрика: Развертки санузлов необходимы для привязки выводов оборудования и раскладки плитки.

Таким образом, развертки являются важным элементом дизайн-проекта, обеспечивая детализированное и точное представление о будущем интерьере, что помогает как строителям, так и заказчикам.

Презентация проекта

Снимок экрана 2025-05-02 174057.jpg
Снимок экрана 2025-05-02 174210.jpg
Снимок экрана 2025-05-02 174248.jpg
Снимок экрана 2025-05-02 174331.jpg
Снимок экрана 2025-05-02 174410.jpg
Снимок экрана 2025-05-02 174002.jpg
Снимок экрана 2025-05-02 174518.jpg

Оценили проект:

0