можете пройти по ссылке https://kwork.ru/user/harut_energetik

Арут Энергетик arutenergetik

Рейтинг: 66
не верифицирован
Всего отзывов: 0
  • Работ в портфолио: 6
  • Типовых услуг: 0
  • Работ на продажу: 0
  • Возраст: 32 года
  • Стаж работы: 11 лет
  • Зарегистрирован: 25.04.2025
  • Образование: Бакалавриат
  • Юридический статус:Частное лицо
Был на сайте:

Проект умного дома

Описание

Сделать так чтобы все было максимально понятно для монтажников

Решение

Добрый день, сделаю проект умного дома , качественно и в срок, можете ознакомится с примером. Работаю и с Ujin Technologies и с HDL

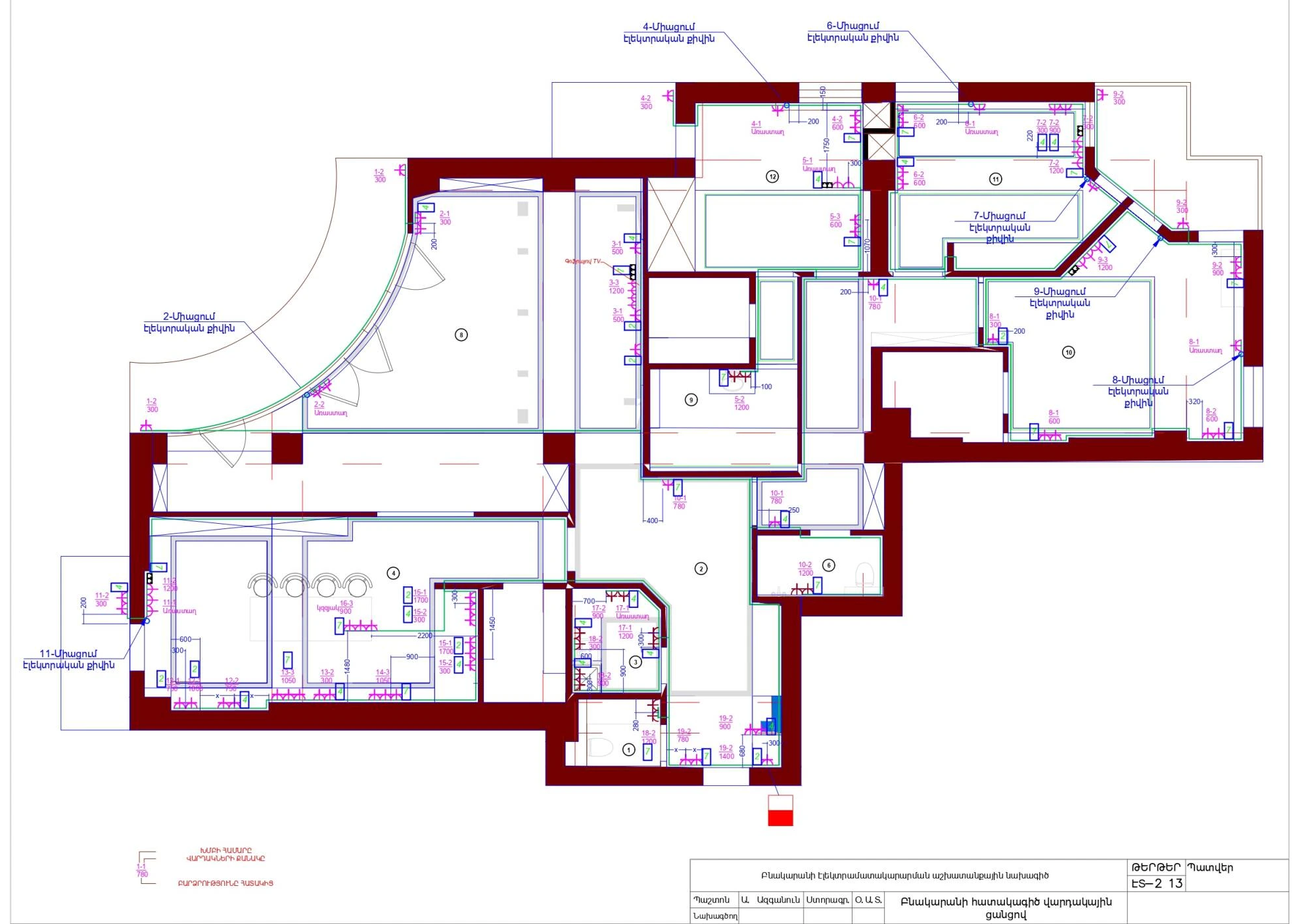
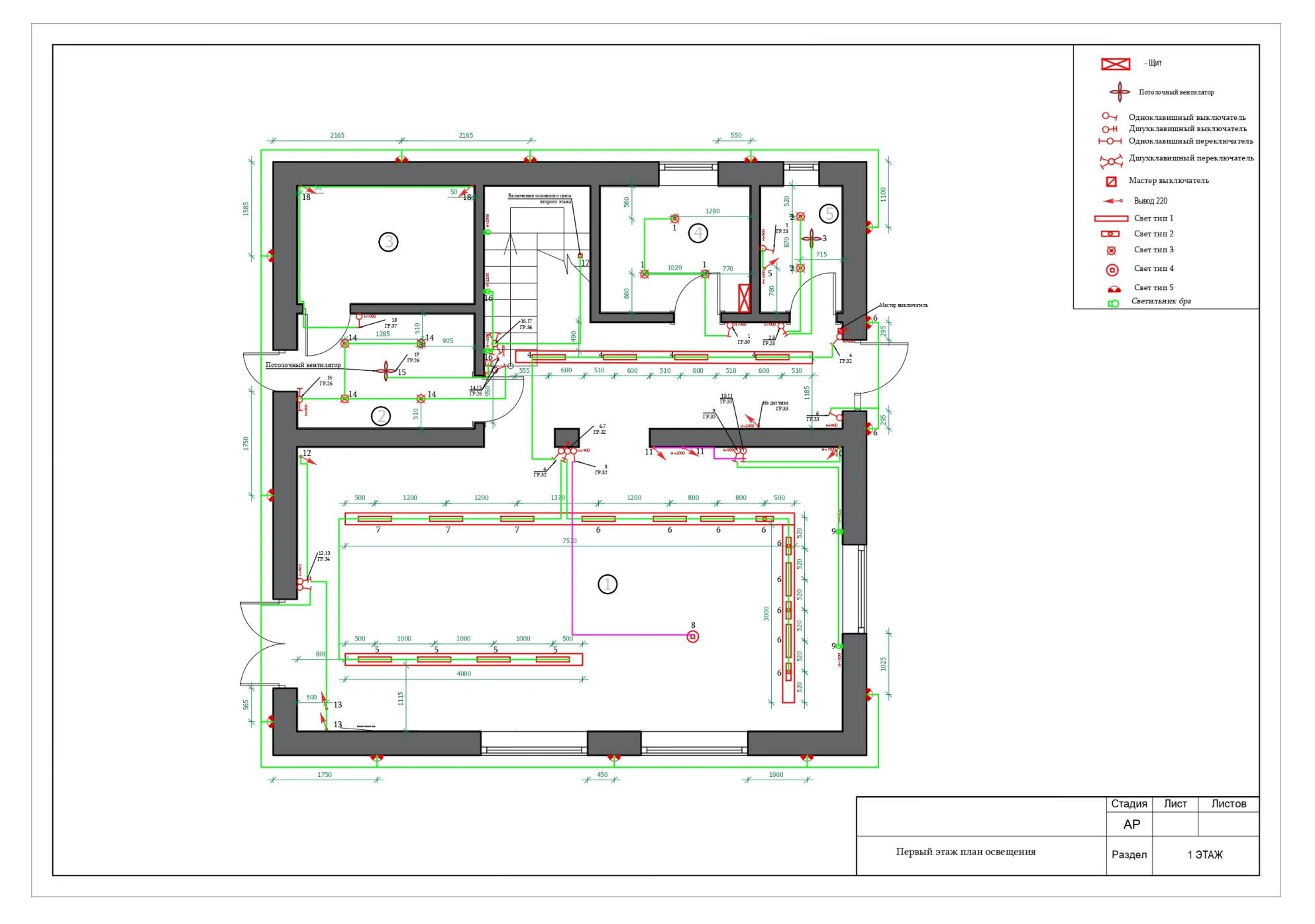
Проект включает в себя:

- однолинейную схему,

- планы сетей освещения,

- план розеток и выводов,

- планы электрического теплого пола,

- планы дополнительной системы уравнивания потенциалов

- визуализацию щитов,

- спецификацию оборудования,

- кабельный журнал.

Для системы Умный дом на базе шины KNX дополнительно:

- принципиальные схемы;

- планы сетей KNX;

- планы управления оборудованием

Презентация проекта

Снимок экрана (23).png
Снимок экрана (24).png
Снимок экрана (25).png
Снимок экрана (26).png
Снимок экрана (27).png

Оценили проект:

0