Рейтинг: 164
не верифицирован
Всего отзывов: 0
  • Работ в портфолио: 15
  • Типовых услуг: 1
  • Работ на продажу: 0
  • Образование: Бакалавриат
  • Тип занятости: Полный фриланс
  • Юридический статус:Самозанятый
Была на сайте:

Проект 2х этажного дома 160м2 с панорамными окнами г.Краснодар

Описание

Минимум визуального шума. Теплые оттенки. натуральные материалы.

Решение

Для снижения визуального шума я применила теневой профиль на потолке, микроплинтус и скрытые двери. Дерево-орех. Штукатурка на стенах светло-бежевая замша.

Результат

Результат порадовал заказчиков. Ждем реализации в скором времени.

Презентация проекта

дом_2_этажа,_краснодар_SAS_Камера_гостиная_на_лестницу_got.jpg
дом_2_этажа,_краснодар_SAS_Камера_гостиная_на_ТВ_испр.jpg
Камера_детская_на_кровать0065.jpg
Камера_детская_на_окно.jpg
Камера_мастер-спальня_на_кровать_доп_вид0065.jpg
Камера_постирочная.jpg
Камера_с_у_1_этаж_1.jpg
Камера_с_у_1_этаж_2.jpg
расстановка мебели 1.jpg
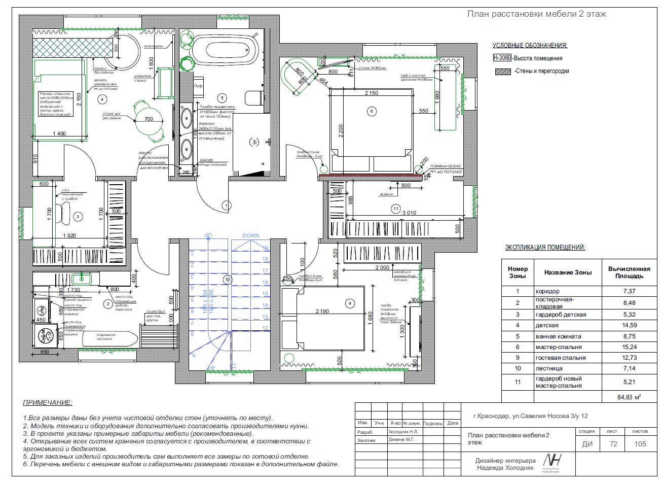
расстановка мебели 2.jpg

Оценили проект:

0