Рейтинг: 51
не верифицирован
Всего отзывов: 0
  • Работ в портфолио: 1
  • Типовых услуг: 0
  • Работ на продажу: 0
  • Образование: Магистратура
  • Стаж работы: 10 лет
  • Тип занятости: Подработка
  • Юридический статус:Частное лицо
Был на сайте:

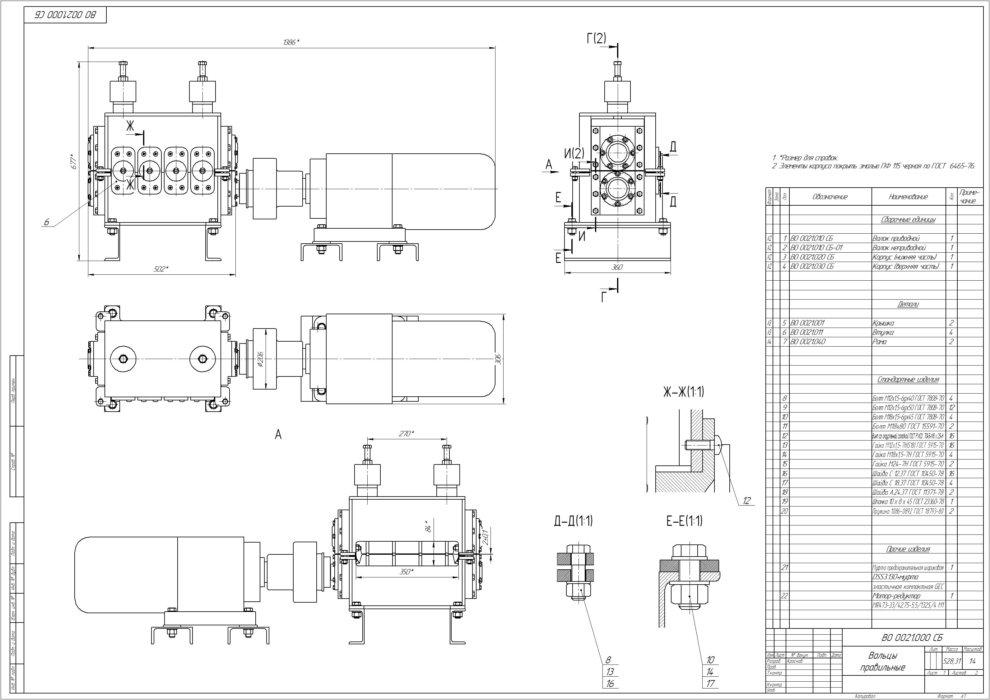
Вальцы правильные

Описание

Вальцы правильные для правки круга диаметром 10 мм. Мощность привода 5 кВт, количество ручьев для правки 4 шт. Конструкция рассчитана на правку круга диаметром до 16 мм, поэтому изменив диаметры ручьев можно настроить машину для работы с кругом диаметром от 5 до 16 мм. Машина применяется для правки кусков круга бывших в употреблении для обеспечения возможности повторного использования.

Результат

Вальцы реализованы на предприятии АО "Балаково-Центролит" и находятся в работе более 5 лет.

Ссылки на примеры реализации

 vmasshtabe.ru/mashinostroenie-i-mehanika/valtsyi-p...

Презентация проекта

Вальцы правильные _ ВО 0021.000 СБ.jpg

Оценили проект:

0