Дизайнер Интерьера

Агата Истомина agatakakdelaa

Рейтинг: 73
не верифицирован
Всего отзывов: 0
  • Работ в портфолио: 3
  • Типовых услуг: 1
  • Работ на продажу: 0
  • Возраст: 23 года
  • Зарегистрирован: 17.05.2022
Была на сайте:

Дизайн проект детской комнаты для мальчика в Москве

Описание

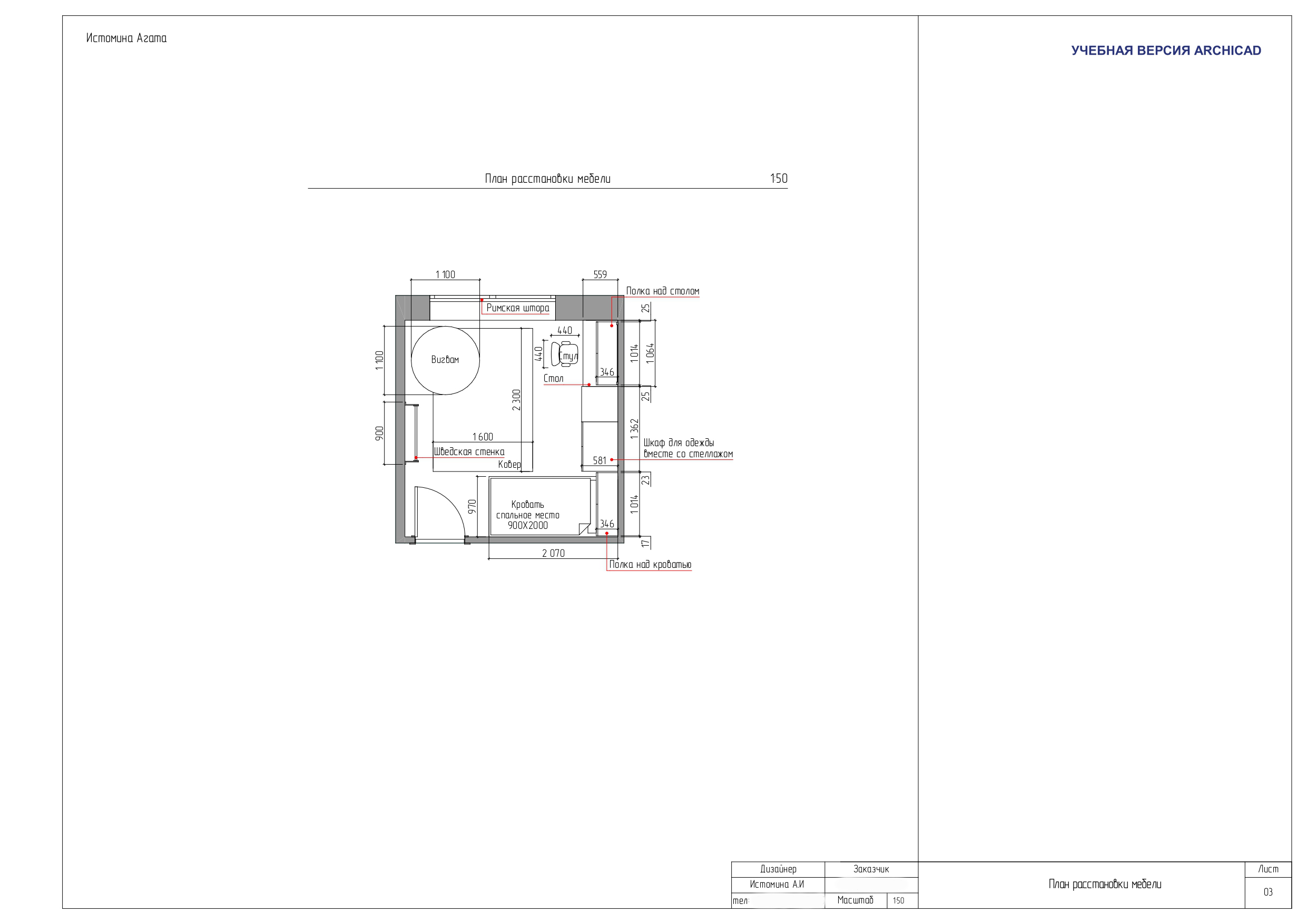
Дизайн проект детской комнаты для мальчика в Москве.Важно было сделать игровую зону и рабочее место

Презентация проекта

Детская комната_page-0002.jpg
Детская комната_page-0003.jpg
Коллаж детской 1 ракурс_page-0001.jpg
коллаж 2 ракурс_page-0001.jpg

Оценили проект:

0