Рейтинг: 52
не верифицирован
Всего отзывов: 0
  • Работ в портфолио: 2
  • Типовых услуг: 0
  • Работ на продажу: 0
  • Возраст: 39 лет
  • Зарегистрирован: 07.03.2025
Была на сайте:

Реальный пример преображения пространства

Описание

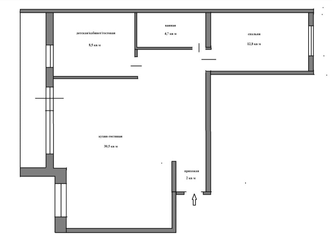
Флиппинговая квартира. Куплена в состоянии "требует ремонта", выполнена перепланировка, разработаны объемно-планировочные решения, произведена полная замена коммуникаций, чистовые ремонтные работы и отделка, последующий дизайн и хоумстейдж. Проект персонально мой. Объединение кухни с гостиной и объединение санузла были ключевой идеей. Площадь 60 кв м.

Презентация проекта

photo_5_2025-03-07_13-36-01.jpg
photo_6_2025-03-07_13-36-01.jpg
photo_1_2025-03-07_13-35-57.jpg
photo_8_2025-03-07_13-35-57.jpg
photo_5_2025-03-07_13-35-57.jpg
photo_2_2025-03-07_13-36-01.jpg
photo_2_2025-03-07_13-35-57.jpg
photo_1_2025-03-07_13-36-01.jpg
photo_3_2025-03-07_13-36-01.jpg
photo_2025-03-07_13-41-00.jpg

Оценили проект:

0