Рейтинг: 153
Паспорт верифицирован
Всего отзывов: 0
Выполнил заданий: 2
  • Работ в портфолио: 4
  • Типовых услуг: 0
  • Работ на продажу: 0
  • Возраст: 22 года
  • Зарегистрирован: 06.04.2024
  • Образование: Среднее общее
Был на сайте:

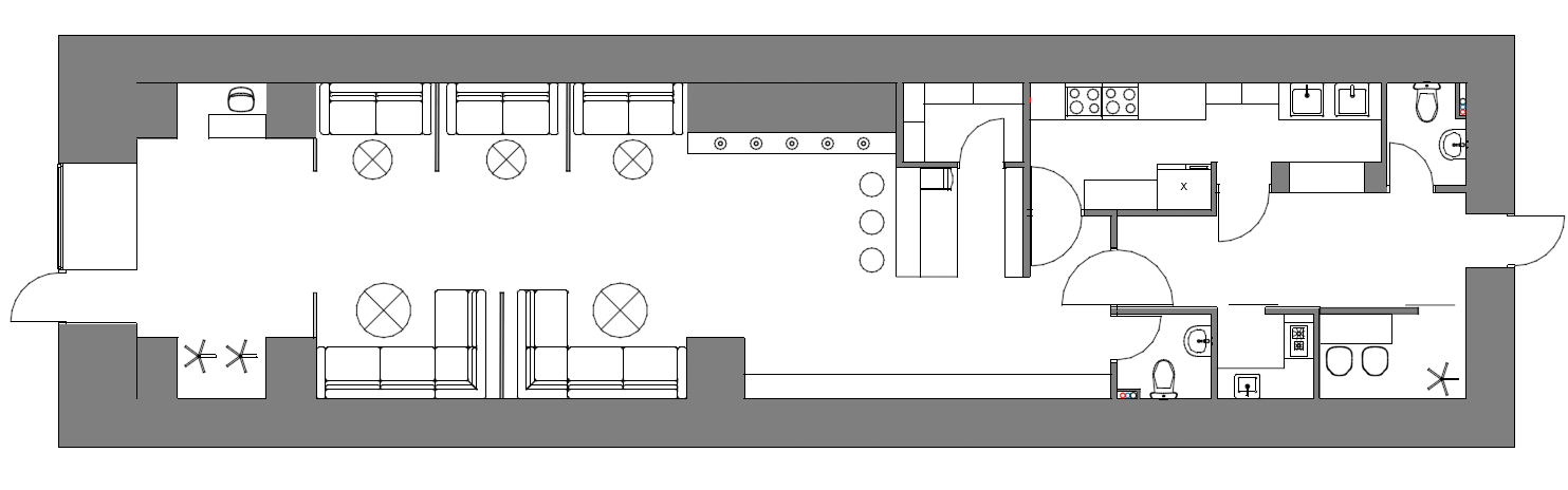
Дизайн концепция кальян-бара 105 кв.м. и 3D-визуализация

Описание

Стояла задача спроектировать кальян-бар в минимализме с добавлением восточного стиля.

Решение

Для решения поставленной задачи выполнил подбор мебели и оборудования подходящие под концепцию данного проекта. Постарался сделать пространство удобным и привлекающим внимания. После окончания этапа проектирования, перешел к визуализации проекта.

Результат

Все получилось достаточно хорошо и интересно. В проекте присутствует минимализм и упоминания о востоке.

Презентация проекта

Снимок экрана 2025-03-04 164409.png
4.jpg
3 р.jpg
1 готовый.jpg
2 готовоо.jpg
5готово.jpg
6.jpg

Оценили проект:

0