Чем больше времени на разработку проекта, тем дешевле для вас.

Leonid Voytsitskiy ttf64x

Рейтинг: 169
не верифицирован
Всего отзывов: 1 0
Выполнил заданий: 1
  • Активность:
  • Работ в портфолио: 64
  • Типовых услуг: 0
  • Работ на продажу: 0
  • Зарегистрирован: 15.10.2013
Был на сайте:

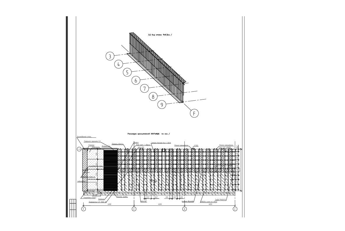
Навесной фасад

Описание

Описание Навесной фасад

Решение

Решение: Навесной фасад

Результат

Результат: Навесной фасад

Презентация проекта

Навесной фасад.png

Оценили проект:

0