Рейтинг: 132
не верифицирован
Всего отзывов: 0
  • Работ в портфолио: 3
  • Типовых услуг: 1
  • Работ на продажу: 0
Был на сайте:

Проектирование умного дома

Используемые навыки:

Описание

Проектирование умного дома, планов электрики в квартире-доме, освещение ландшафта, подбор оборудования

Решение

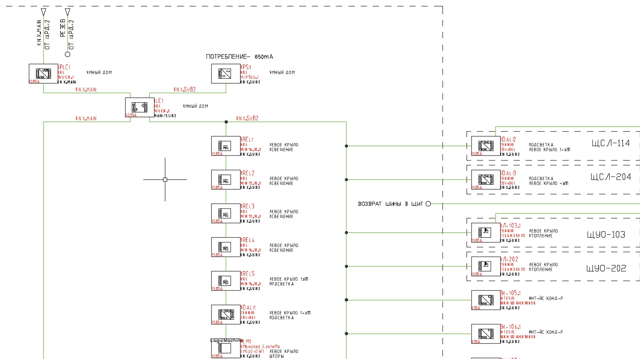
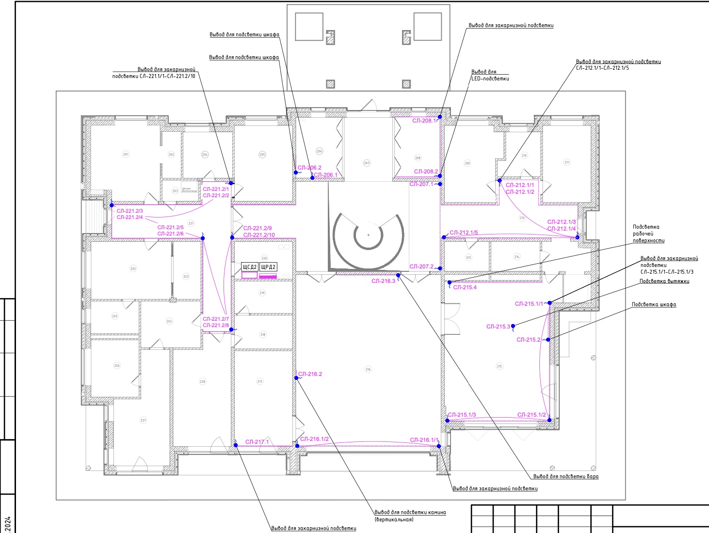
Проектирование умного дома, обычно включает в себя:
Планы квартиры или дома
Кабельная сеть
Кабельный журнал
Структура реализации и связь систем между собой

Результат

ПДФ формат: планы, кабельный журнал, структурные схемы, пояснительную записку, принципиальные схемы

Презентация проекта

380-220.jpg
Без названия 5.jpg
Без названия 3.jpg
кнх.jpg
кж.jpg

Оценили проект:

0