Рейтинг: 118
не верифицирован
Всего отзывов: 1 0
Выполнила заданий: 1
  • Работ в портфолио: 53
  • Типовых услуг: 0
  • Работ на продажу: 0
Была на сайте:

Рабочий проект однокомнатной

Используемые навыки:

Описание

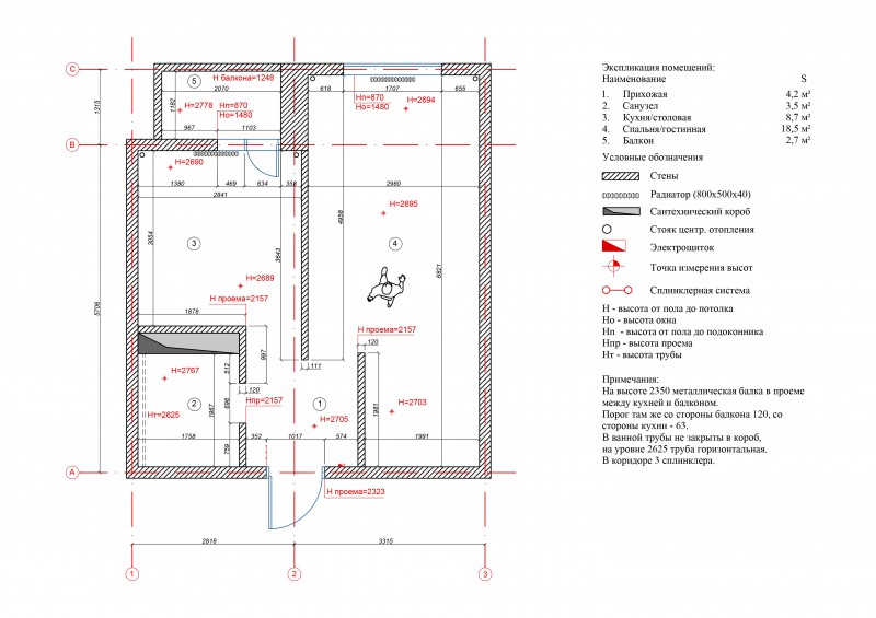
Некоторые чертежи из папки Рабочего Проекта однокомнатной квартиры для молодой пары г Краснодар

Презентация проекта

pic4020507.jpg
нижняя электрика.jpg
верхняя электрика.jpg
сценарий.jpg
трассировка.jpg

Оценили проект:

0