Вперёд и вверх!

Роман Жаров GRVlad

Рейтинг: 71
не верифицирован
Всего отзывов: 0
  • Работ в портфолио: 11
  • Типовых услуг: 0
  • Работ на продажу: 0
Был на сайте:

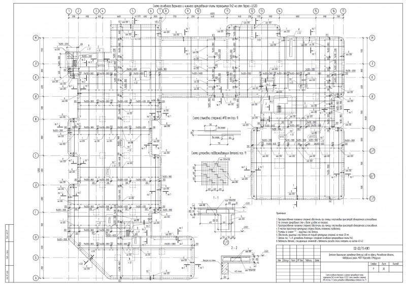
КЖ монолитных капительных плит перекрытий здания детского сада

Используемые навыки:

Описание

Ниже представлены рабочие чертежи марки КЖ железобетонных монолитных капительных плит перекрытий здания детского сада.
Графическая часть выполнена в программе Autodesk Revit 2014, расчеты произведены в системе Ing+ 2012.

Презентация проекта

pic2465067.jpg

Оценили проект:

0