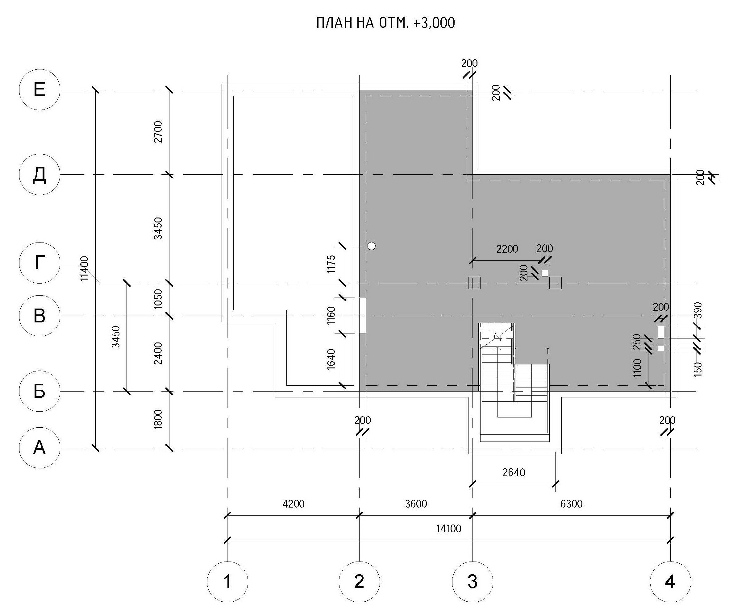
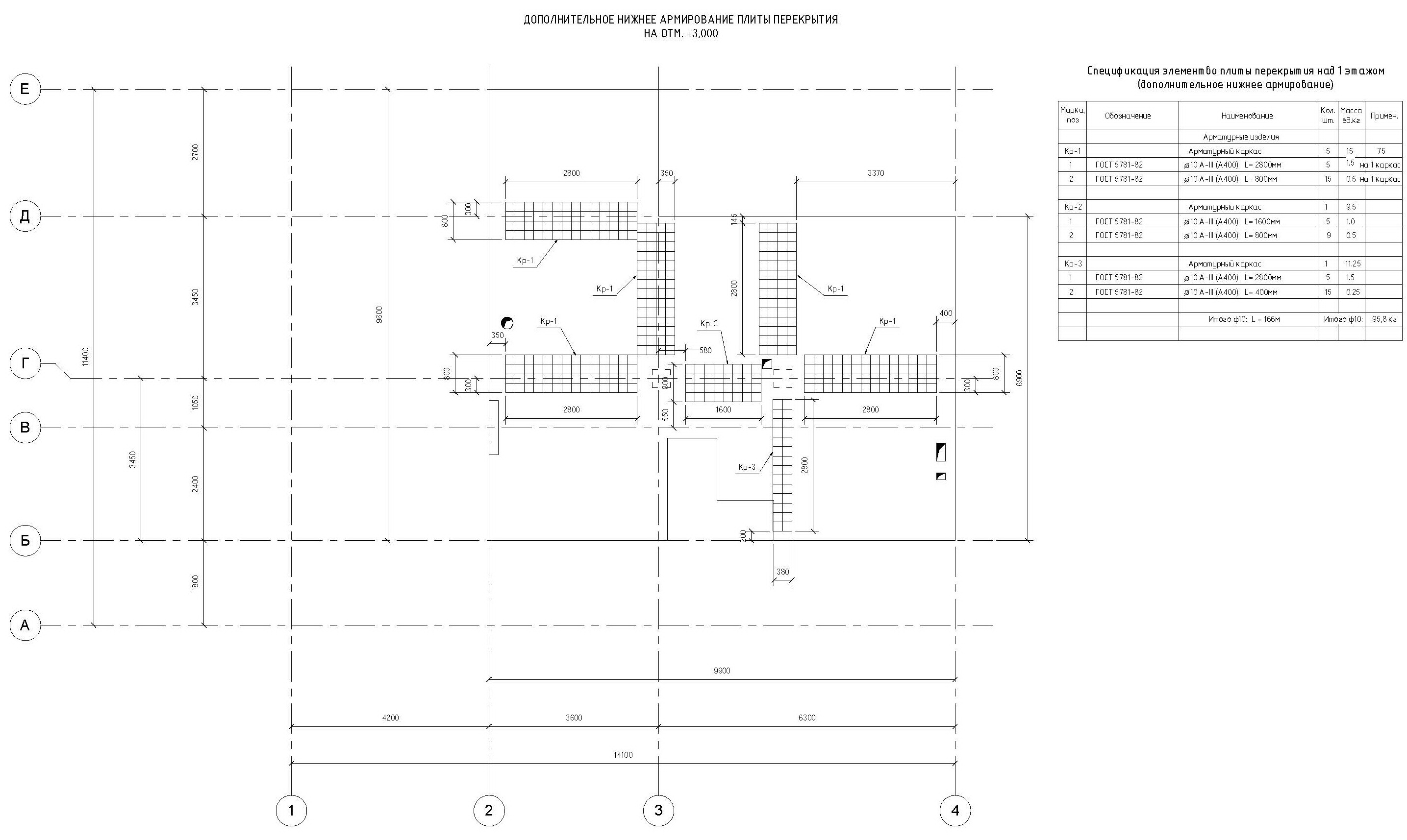
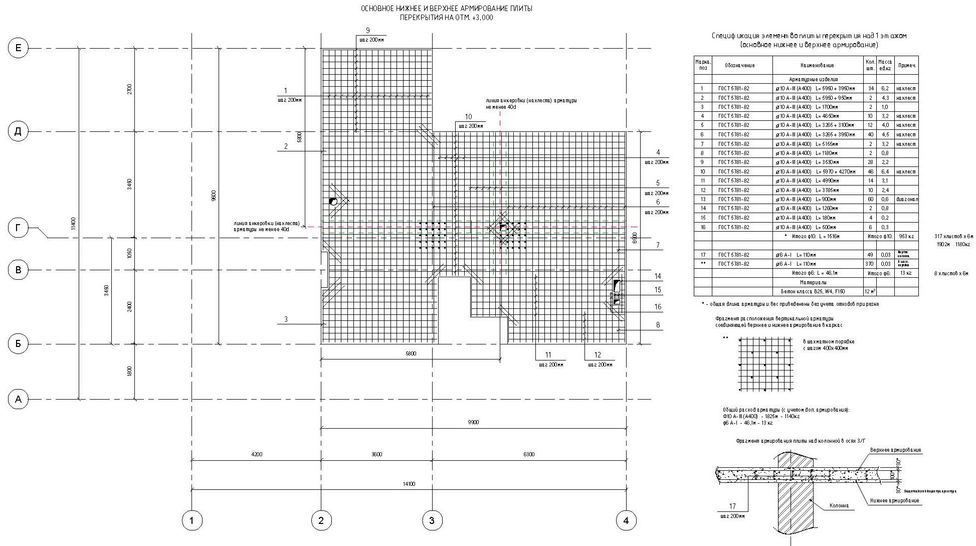
Расчет плиты перекрытия
Для полной функциональности этого сайта необходимо включить JavaScript.
Москва
На сайте с: 25.09.2013
Работаю с интересом.
Антон Лоцманов
Legantmar
Рейтинг: 142
не верифицирован
Всего отзывов:
2
0
Работ в портфолио:
67
Типовых услуг:
0
Работ на продажу:
0
Был на сайте:
2016-06-29 в 08:05
8 (916) 453-81-32
inbox
legantmar.ru
Предложить работу
Добавить в избранное
Добавить рекомендацию
Пожаловаться
Инженерия
22
0
Расчет плиты перекрытия
Используемые навыки:
Строительные конструкции
Описание
Решение
Результат
Соавторы
Презентация проекта
Примеры реализации
Описание
Презентация проекта
Оценили проект:
0
×
Оценили проект
×
Авторизация
Для того чтобы оценивать проекты, вам нужно войти на сайт
Другие проекты
Все проекты
Зеленый оазис
Информационный указатель
Примеры генплана и пр.
FREELANCE.RU
Toggle navigation
Нанять фрилансера
Заказчику
Найти по специализации
Найти по услугам
Провести конкурс
Разместить задание
Другое
Найти работу
Фрилансеру
Найти задание
Присоединиться к команде
Участвовать в конкурсе
Другое
Возможности
Для заказчика
Для фрилансера
Вход
Разместить задание
▲