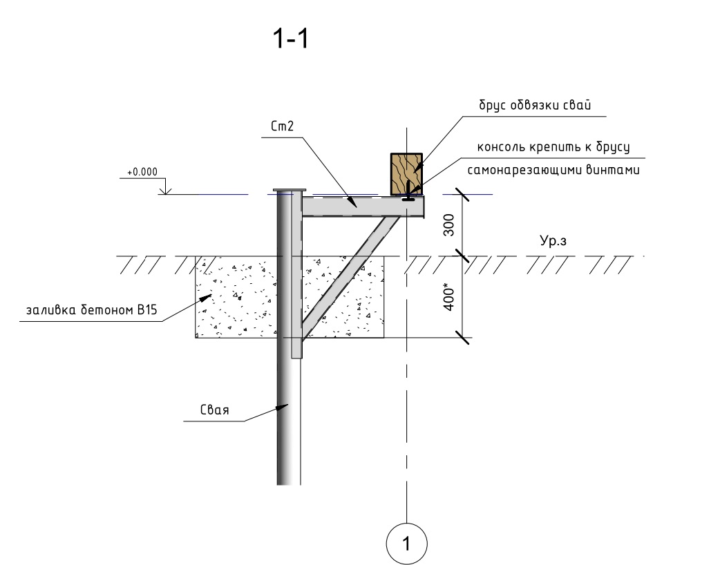
Усиление фундамента с помощью винтовых свай с кронштейном
Для полной функциональности этого сайта необходимо включить JavaScript.
Москва
На сайте с: 25.09.2013
Работаю с интересом.
Антон Лоцманов
Legantmar
Рейтинг: 142
не верифицирован
Всего отзывов:
2
0
Работ в портфолио:
67
Типовых услуг:
0
Работ на продажу:
0
Был на сайте:
2016-06-29 в 08:05
8 (916) 453-81-32
inbox
legantmar.ru
Предложить работу
Добавить в избранное
Добавить рекомендацию
Пожаловаться
Инженерия
17
0
Усиление фундамента с помощью винтовых свай с кронштейном
Используемые навыки:
Строительные конструкции
Описание
Решение
Результат
Соавторы
Презентация проекта
Примеры реализации
Описание
Презентация проекта
Оценили проект:
0
×
Оценили проект
×
Авторизация
Для того чтобы оценивать проекты, вам нужно войти на сайт
Другие проекты
Все проекты
Частный жилой дом
Разное для РЖД
Расчет каркаса
FREELANCE.RU
Toggle navigation
Нанять фрилансера
Заказчику
Найти по специализации
Найти по услугам
Провести конкурс
Разместить задание
Другое
Найти работу
Фрилансеру
Найти задание
Присоединиться к команде
Участвовать в конкурсе
Другое
Возможности
Для заказчика
Для фрилансера
Вход
Разместить задание
▲