Мы в ответе за тех кого начертили!

Владимир Константиненко v.konstantinenko

Рейтинг: 100
не верифицирован
Всего отзывов: 0
  • Активность:
  • Работ в портфолио: 10
  • Типовых услуг: 0
  • Работ на продажу: 0
Был на сайте:

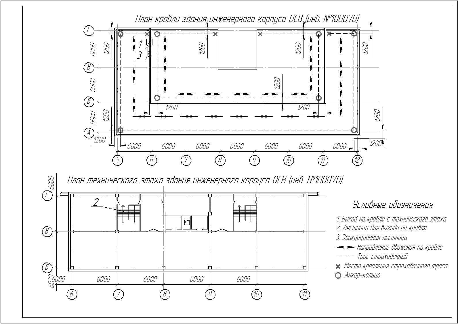
Инженерный корпус ОСВ (Харцизский трубный завод)

Используемые навыки:

Описание

Схема, входящая в состав проекта организации работ (ПОР) по ремонту кровли после артобстрела в 2014 году. Была векторизована с бумажного чертежа и редактирована в Компас-3D V16.

Презентация проекта

pic2474181.jpg

Оценили проект:

0