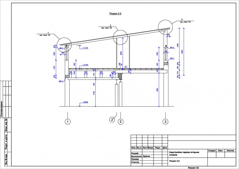
Разрез
Для полной функциональности этого сайта необходимо включить JavaScript.
Новосибирск
На сайте с: 25.08.2015
Креатив, качество, скорость!
AD Room
AD_Room
Рейтинг: 220
не верифицирован
Всего отзывов:
0
Активность:
Работ в портфолио:
150
Типовых услуг:
0
Работ на продажу:
0
Был на сайте:
2016-08-03 в 14:14
+7 913 384 8195
inbox
artdes.room@gmail.com
Вконтакте
Предложить работу
Добавить в избранное
Добавить рекомендацию
Пожаловаться
Инженерия
21
0
Разрез
Используемые навыки:
Чертежи/Схемы
Описание
Решение
Результат
Соавторы
Презентация проекта
Примеры реализации
Описание
Автор: Брагин Никита
Презентация проекта
Оценили проект:
0
×
Оценили проект
×
Авторизация
Для того чтобы оценивать проекты, вам нужно войти на сайт
Другие проекты
Все проекты
Фан-арт American McGee’s Alice
Маска
Индивидуальный жилой дом_вид
FREELANCE.RU
Toggle navigation
Нанять фрилансера
Заказчику
Найти по специализации
Найти по услугам
Провести конкурс
Разместить задание
Другое
Найти работу
Фрилансеру
Найти задание
Присоединиться к команде
Участвовать в конкурсе
Другое
Возможности
Для заказчика
Для фрилансера
Вход
Разместить задание
▲