Раздел ЭОМ Магазин одежды
Для полной функциональности этого сайта необходимо включить JavaScript.
Санкт-Петербург
На сайте с: 29.06.2015
Качество Сроки Стоимость
Александр Зайцев
El_Seti_SPb
Рейтинг: 114
не верифицирован
Всего отзывов:
0
Активность:
Работ в портфолио:
24
Типовых услуг:
0
Работ на продажу:
0
Был на сайте:
2016-08-09 в 16:52
inbox
Предложить работу
Добавить в избранное
Добавить рекомендацию
Пожаловаться
Инженерия
10
0
Раздел ЭОМ Магазин одежды
Используемые навыки:
Электроснабжение
Описание
Решение
Результат
Соавторы
Презентация проекта
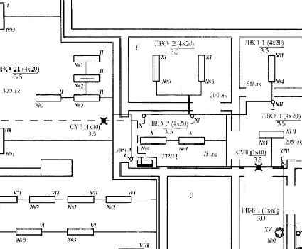
Примеры реализации
Описание
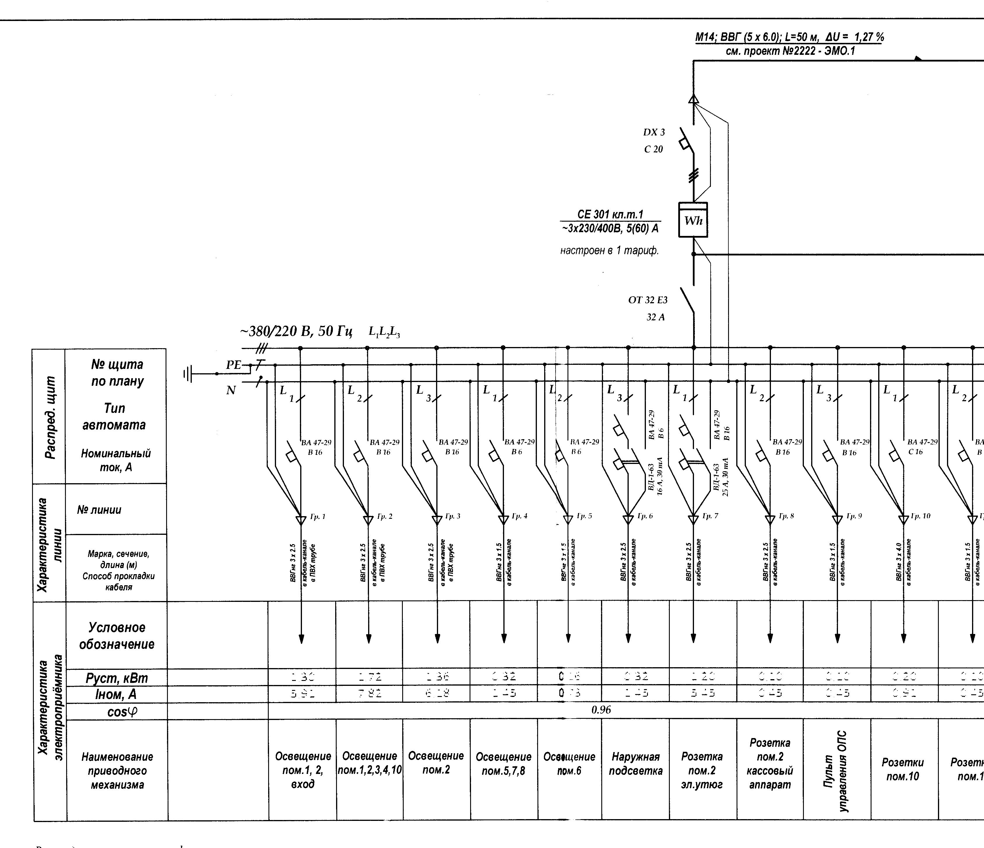
Электроосвещение и розеточная сеть
Презентация проекта
Оценили проект:
0
×
Оценили проект
×
Авторизация
Для того чтобы оценивать проекты, вам нужно войти на сайт
Другие проекты
Все проекты
Совместная подвеска ВОЛС на ВЛИ-0,4кВ
ЭОМ автостоянка
ВЛЗ-10кВ Двухцепная.Кабельная линия 10 кВ.
FREELANCE.RU
Toggle navigation
Нанять фрилансера
Заказчику
Найти по специализации
Найти по услугам
Провести конкурс
Разместить задание
Другое
Найти работу
Фрилансеру
Найти задание
Присоединиться к команде
Участвовать в конкурсе
Другое
Возможности
Для заказчика
Для фрилансера
Вход
Разместить задание
▲