Проект многоквартирного жилого дома
Для полной функциональности этого сайта необходимо включить JavaScript.
Минск
41 год
На сайте с: 03.09.2015
Denis Baranets
ElecEngineer
Рейтинг: 79
не верифицирован
Всего отзывов:
0
Работ в портфолио:
9
Типовых услуг:
0
Работ на продажу:
0
Был на сайте:
2016-08-31 в 19:39
inbox
elengineer.ru
Вконтакте
Предложить работу
Добавить в избранное
Добавить рекомендацию
Пожаловаться
Инженерия
17
0
Проект многоквартирного жилого дома
Используемые навыки:
Электроснабжение
Описание
Решение
Результат
Соавторы
Презентация проекта
Примеры реализации
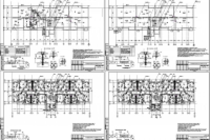
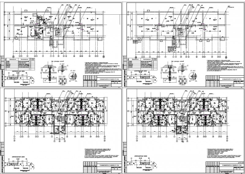
Описание
Планы раздела ЭОМ
Презентация проекта
Оценили проект:
0
×
Оценили проект
×
Авторизация
Для того чтобы оценивать проекты, вам нужно войти на сайт
Другие проекты
Все проекты
Реконструкция городской больницы
Электроснабжение
Схема
FREELANCE.RU
Toggle navigation
Нанять фрилансера
Заказчику
Найти по специализации
Найти по услугам
Провести конкурс
Разместить задание
Виртуальный HR
Другое
Найти работу
Фрилансеру
Найти задание
Присоединиться к команде
Участвовать в конкурсе
Предложить услугу
Другое
Возможности
Для заказчика
Для фрилансера
Вход
Разместить задание
▲