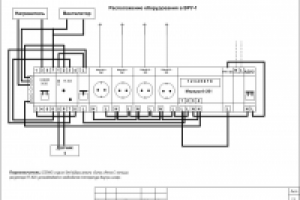
Электроснабжение шкафа связи
Для полной функциональности этого сайта необходимо включить JavaScript.
Стерлитамак
63 года
На сайте с: 01.04.2012
Ильдар Абдуллин
ildar0162
Рейтинг: 115
не верифицирован
Всего отзывов:
0
Активность:
Работ в портфолио:
15
Типовых услуг:
0
Работ на продажу:
0
Был на сайте:
2016-09-16 в 19:34
inbox
Предложить работу
Добавить в избранное
Добавить рекомендацию
Пожаловаться
Инженерия
12
0
Электроснабжение шкафа связи
Используемые навыки:
Электроснабжение
Описание
Решение
Результат
Соавторы
Презентация проекта
Примеры реализации
Описание
Презентация проекта
Оценили проект:
0
×
Оценили проект
×
Авторизация
Для того чтобы оценивать проекты, вам нужно войти на сайт
Другие проекты
Все проекты
Электроснабжение офиса
Телефонизация района
Автоматизация котельной
FREELANCE.RU
Toggle navigation
Нанять фрилансера
Заказчику
Найти по специализации
Найти по услугам
Провести конкурс
Разместить задание
Собрать команду
Другое
Найти работу
Фрилансеру
Найти задание
Присоединиться к команде
Участвовать в конкурсе
Другое
Возможности
Для заказчика
Для фрилансера
Вход
Разместить задание
▲