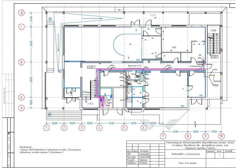
АОЦ ВК 1ЭТ
Для полной функциональности этого сайта необходимо включить JavaScript.
Москва
65 лет
На сайте с: 18.12.2014
У меня всё всегда работает.
Михаил Топтунов
toptunow.mishel
Рейтинг: 95
не верифицирован
Всего отзывов:
0
Работ в портфолио:
25
Типовых услуг:
0
Работ на продажу:
0
Был на сайте:
2016-09-29 в 14:23
+79250755394
inbox
Предложить работу
Добавить в избранное
Добавить рекомендацию
Пожаловаться
Инженерия
29
0
АОЦ ВК 1ЭТ
Используемые навыки:
Теплоснабжение/Отопление/Вентиляция
Описание
Решение
Результат
Соавторы
Презентация проекта
Примеры реализации
Описание
Презентация проекта
Оценили проект:
0
×
Оценили проект
×
Авторизация
Для того чтобы оценивать проекты, вам нужно войти на сайт
Другие проекты
Все проекты
КОТТЕДЖ ПОЭТАЖНЫЙ ПЛАН-3П
КОТТЕДЖ ОТОПЛЕНИЕ-0
ЛЕСТНИЦА ЧЕРТЕЖ ВИД-3,4
FREELANCE.RU
Toggle navigation
Нанять фрилансера
Заказчику
Найти по специализации
Найти по услугам
Провести конкурс
Разместить задание
Виртуальный HR
Другое
Найти работу
Фрилансеру
Найти задание
Присоединиться к команде
Участвовать в конкурсе
Другое
Возможности
Для заказчика
Для фрилансера
Вход
Разместить задание
▲