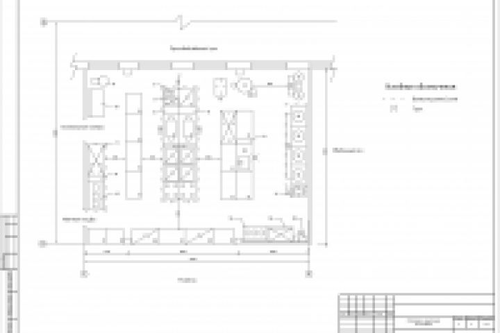
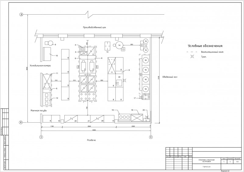
План горячего цеха
Для полной функциональности этого сайта необходимо включить JavaScript.
Уфа
32 года
На сайте с: 29.06.2016
Денис Тишин
tishindenis
Рейтинг: 114
не верифицирован
Всего отзывов:
0
Активность:
Работ в портфолио:
34
Типовых услуг:
0
Работ на продажу:
0
Был на сайте:
2016-11-06 в 13:03
inbox
Предложить работу
Добавить в избранное
Добавить рекомендацию
Пожаловаться
Инженерия
24
0
План горячего цеха
Используемые навыки:
Строительные конструкции
Описание
Решение
Результат
Соавторы
Презентация проекта
Примеры реализации
Описание
Презентация проекта
Оценили проект:
0
×
Оценили проект
×
Авторизация
Для того чтобы оценивать проекты, вам нужно войти на сайт
Другие проекты
Все проекты
Дизайн этикетки жидкостей для электронных сигарет
дизайн чехла для телефона, факультета УГНТУ
Разработка промышленного миксера
FREELANCE.RU
Toggle navigation
Нанять фрилансера
Заказчику
Найти по специализации
Найти по услугам
Провести конкурс
Разместить задание
Виртуальный HR
Другое
Найти работу
Фрилансеру
Найти задание
Присоединиться к команде
Участвовать в конкурсе
Предложить услугу
Другое
Возможности
Для заказчика
Для фрилансера
Вход
Разместить задание
▲