Рейтинг: 41
не верифицирован
Всего отзывов: 0
  • Работ в портфолио: 1
  • Типовых услуг: 0
  • Работ на продажу: 0
Был на сайте:

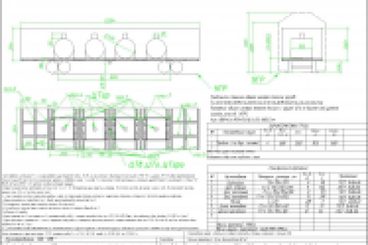
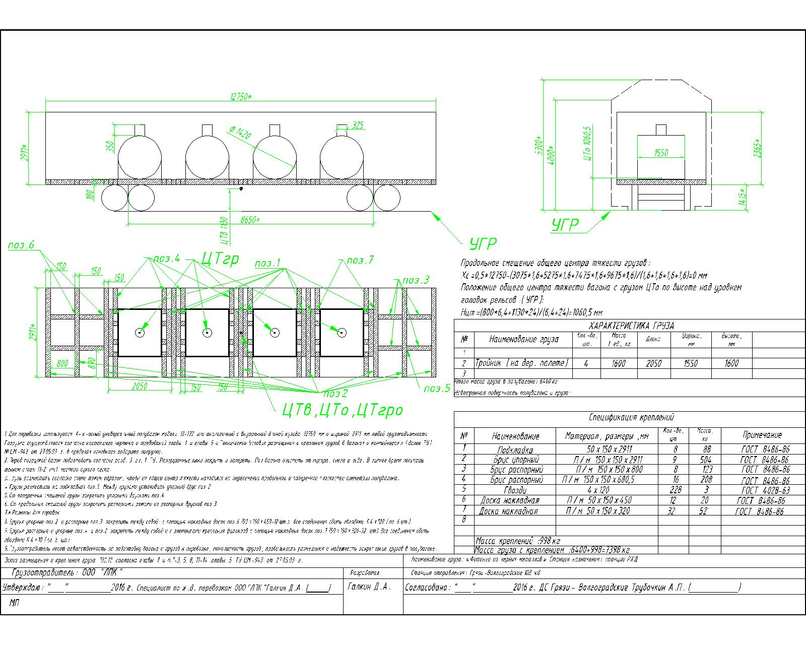
эскизы на погрузку грузов согласно ТУ (ЦМ-943) ж/д транспорт

Используемые навыки:

Описание

Качественная разработка эскизов в системе AutoCAD на погрузку различных грузов на (в) железнодорожный подвижной состав, в строгом соответствии с Техническими условиями (ЦМ-943).

Имеется большой опыт работы по данной тематике.

Презентация проекта

pic2981649.jpg

Оценили проект:

0