Рейтинг: 88
не верифицирован
Всего отзывов: 1 0
Выполнил заданий: 1
  • Работ в портфолио: 8
  • Типовых услуг: 0
  • Работ на продажу: 0
Был на сайте:

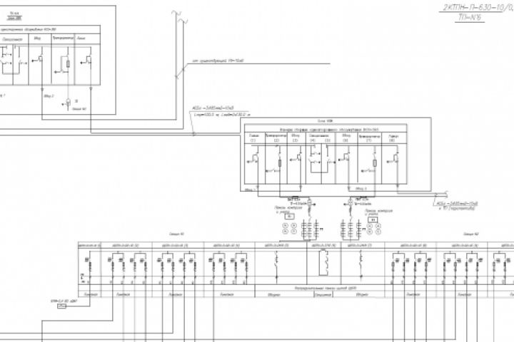
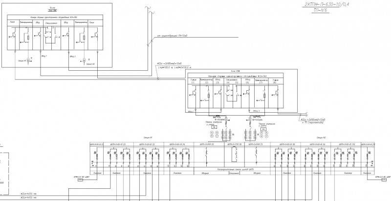
Трансформаторная подстанция ТП-10/0.4

Описание

Трансформаторная подстанция ТП-10/0.4 на 2 трансформатора по 1000 кВА, проходная, Белгородского или Самарского завода изготовителя.

Презентация проекта

pic3314201.jpg

Оценили проект:

0