«Хороший дизайн виден сразу. Отличный дизайн незаметен»

Sergey Filin filipuksus

Рейтинг: 116
не верифицирован
Всего отзывов: 0
  • Активность:
  • Работ в портфолио: 26
  • Типовых услуг: 0
  • Работ на продажу: 0
  • Возраст: 41 год
  • Зарегистрирован: 04.08.2016
Был на сайте:

Разработка Технического дизайн проекта (чертежи)

Используемые навыки:

Описание

Разработка Технического Дизайн проекта (чертежи).
Состав и стоимость техпроекта:
Документация:
ОБМЕРНЫЙ ПЛАН
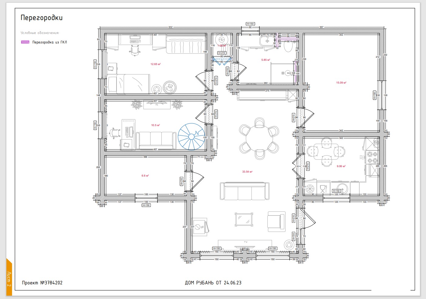
ПЛАН ДЕМОНТИРУЕМЫХ КОНСТРУКЦИЙ И ПЕРЕГОРОДОК
ПЛАНИРОВОЧНОЕ РЕШЕНИЕ (РАССТАНОВКА МЕБЕЛИ)
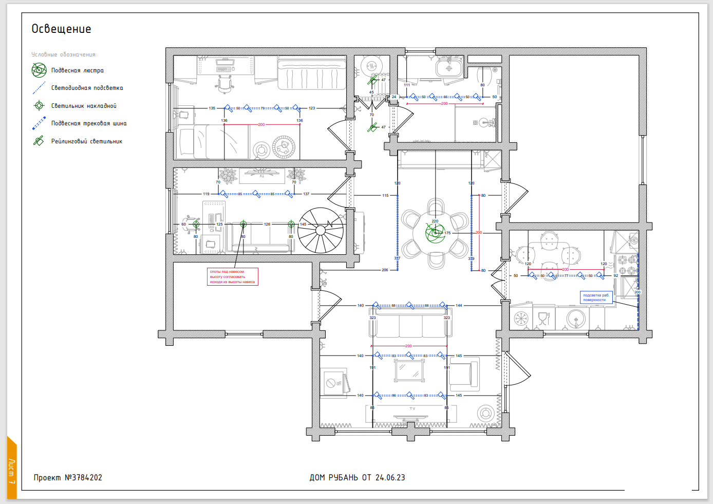
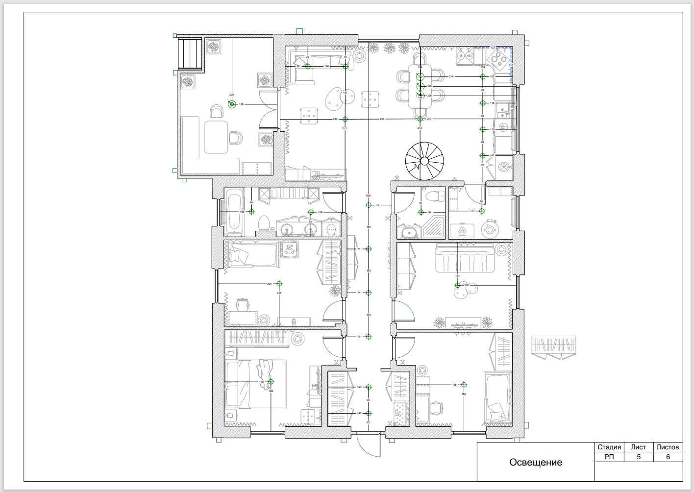
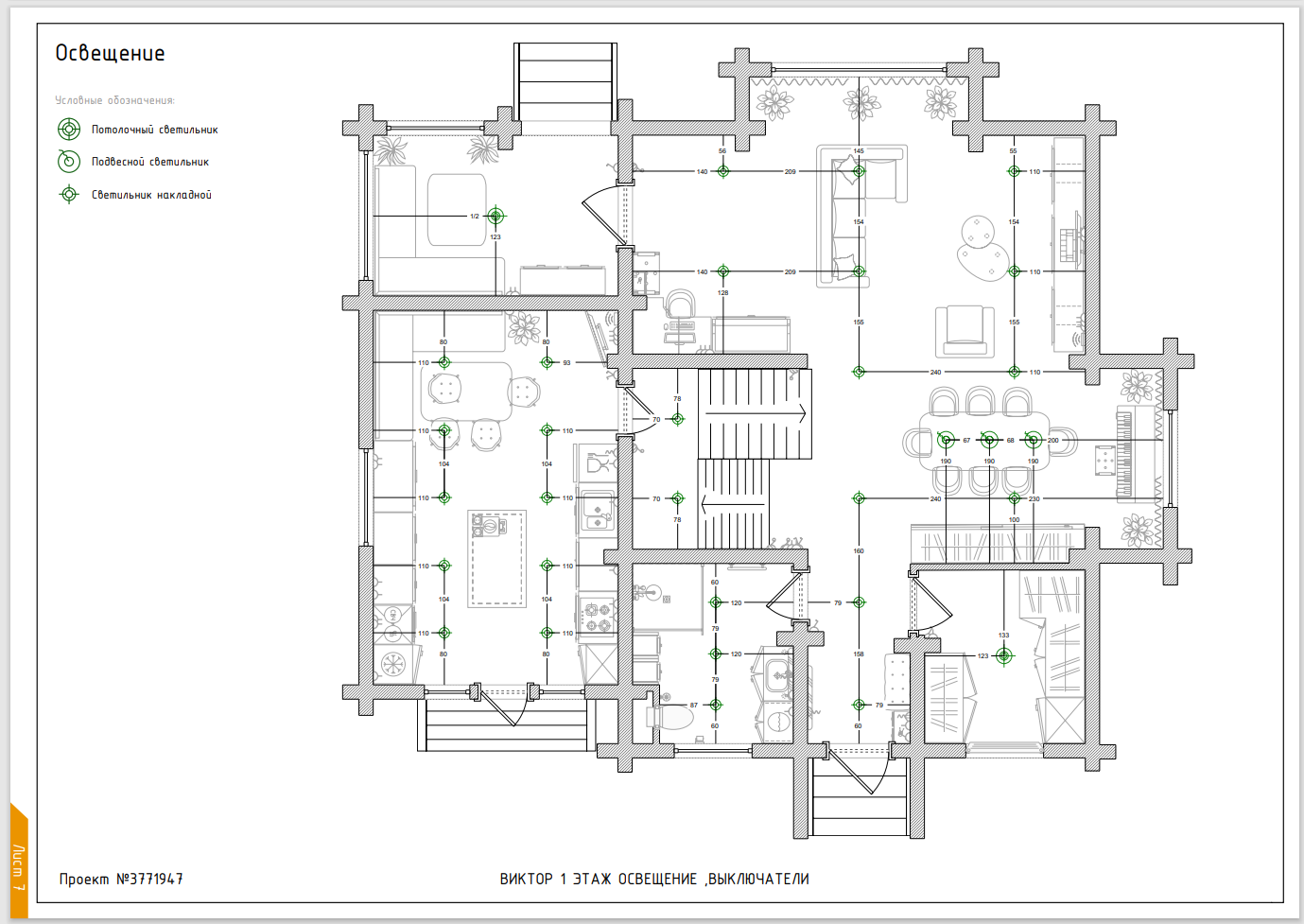
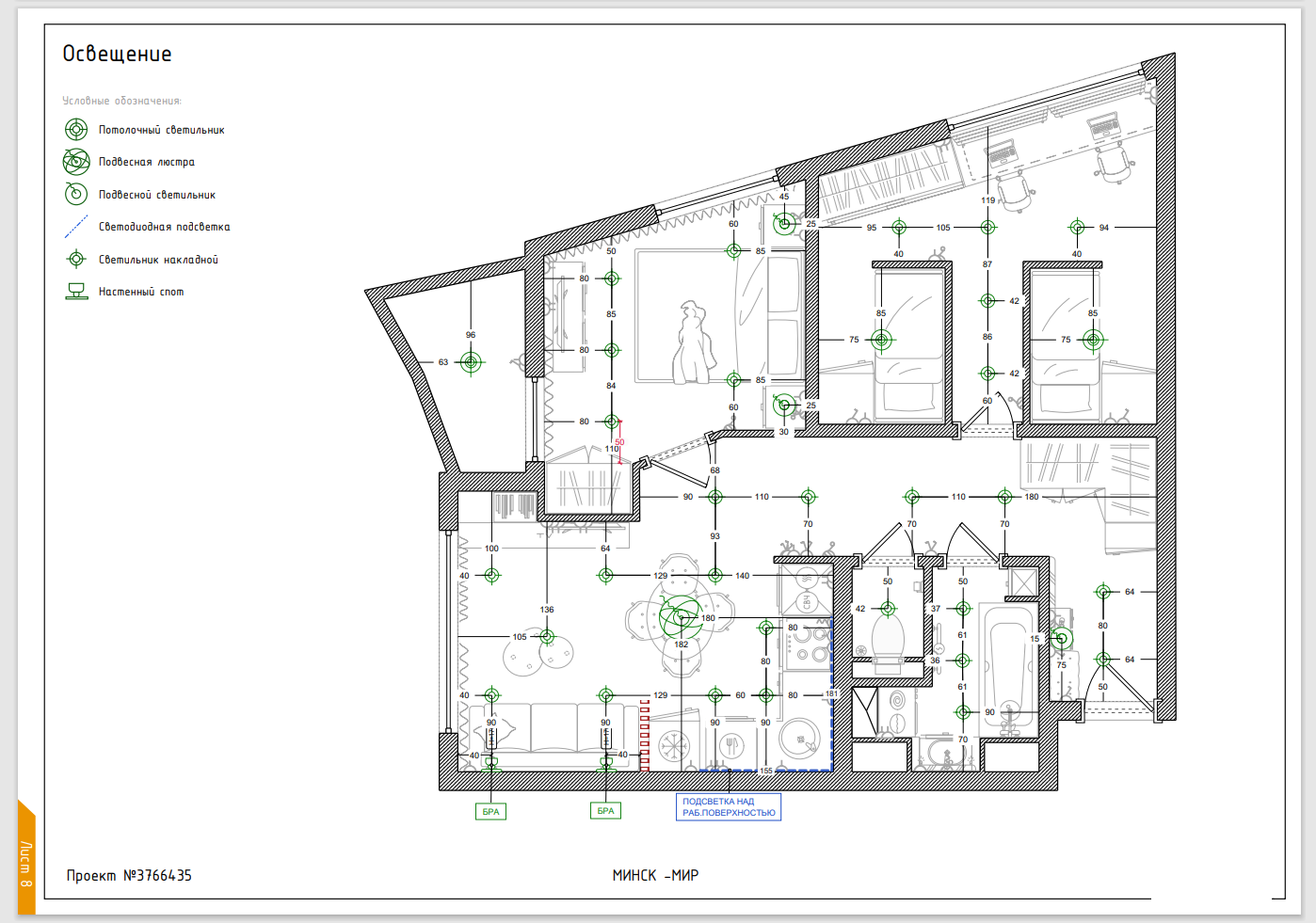
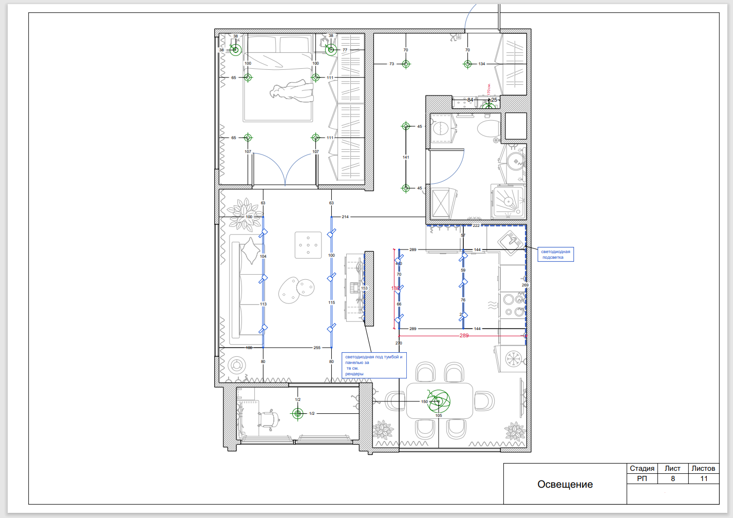
СХЕМА РАСПОЛОЖЕНИЯ ОСВЕТИТЕЛЬНЫХ ПРИБОРОВ
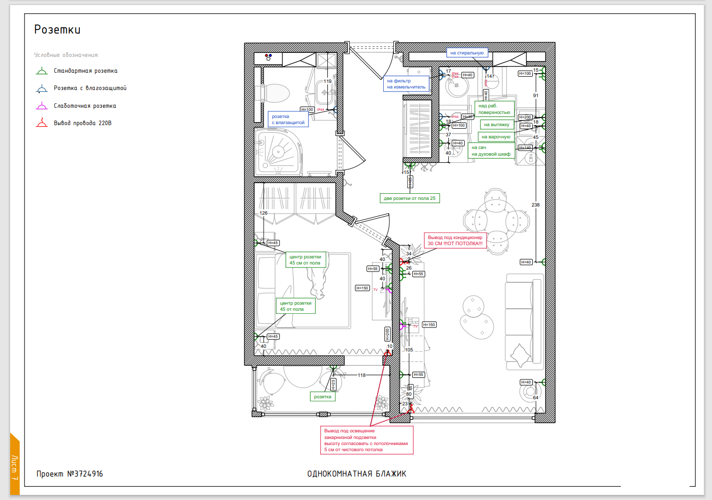
СХЕМА РАСПОЛОЖЕНИЯ РОЗЕТОК И ЭЛЕКТРОВЫВОДОВ
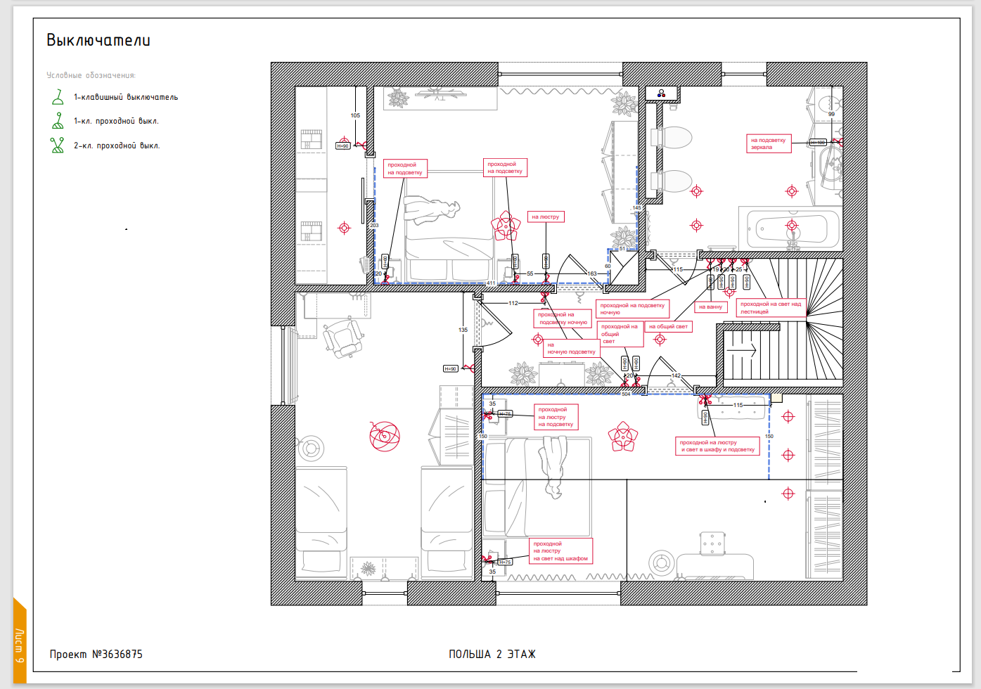
СХЕМА РАСПОЛОЖЕНИЯ ВЫКЛЮЧАТЕЛЕЙ
СХЕМА УСТРОЙСТВА ЭЛЕКТРИЧЕСКОГО ПОЛА (ПРИ НАЛИЧИИ)
ПЛАН КОНДИЦИОНЕРОВ (ПРИ НАЛИЧИИ)
СХЕМА РАСПОЛОЖЕНИЯ ВОДОСНАБЖЕНИЯ И КАНАЛИЗАЦИИ
СХЕМА РАСПОЛОЖЕНИЯ САНТЕХОБОРУДОВАНИЯ И САНТЕХПОСУДЫ

Презентация проекта

pic4470290.jpg
Скриншот 04.08.23_12.28.07.png
Скриншот 04.08.23_12.28.55.png
Скриншот 04.08.23_12.29.18.png
Скриншот 04.08.23_12.29.54.png
Скриншот 04.08.23_12.30.27.png
Скриншот 04.08.23_12.30.54.png
Скриншот 04.08.23_12.31.31.png
Скриншот 04.08.23_12.32.23.png
Скриншот 04.08.23_12.33.09.png
Скриншот 04.08.23_12.33.37.png

Оценили проект:

0