Автоматизированные системы

ИП Ежков Юрий Евгеньевич yur15t

Рейтинг: 1 659
не верифицирован
Всего отзывов: 0
  • Активность:
  • Работ в портфолио: 7
  • Типовых услуг: 0
  • Работ на продажу: 0
  • Зарегистрирован: 10.08.2009
Был на сайте:

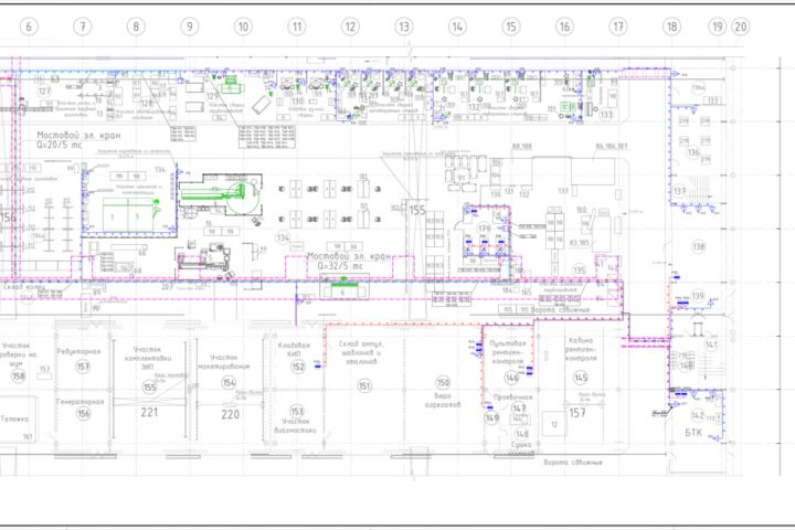
Сети связи и автоматики в производственном здании

Используемые навыки:

Описание

Разработанные разделы:
- Автоматическая установка пожарной сигнализации;
- Система оповещения и управления эвакуацией;
- Охранная сигнализация;
- Система громкоговорящего оповещения;
- Структурированная кабельная система;
- Телефонизация;
- Радиофикация;
- Электрочасофикация;
- Автоматизация комплексная.

Ссылки на примеры реализации

 ezhkov.pro/?p=1807

Презентация проекта

pic4588539.jpg

Оценили проект:

0