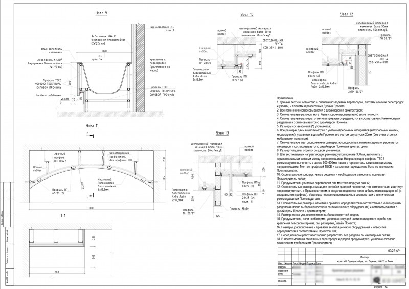
Рабочие чертежи. Узлы перегородок
Для полной функциональности этого сайта необходимо включить JavaScript.
На сайте с: 10.12.2021
Предпочитаю очень разную, но обязательно творческую работу
Alla Anderson
andersonalla
Рейтинг: 148
не верифицирован
Всего отзывов:
0
Нейросаммари
Работ в портфолио:
98
Типовых услуг:
0
Работ на продажу:
0
Была на сайте:
2025-11-25 в 13:28
inbox
avinona@mail.ru
Youtube
Предложить работу
Добавить в избранное
Добавить рекомендацию
Пожаловаться
Арт и Иллюстрации
76
0
Рабочие чертежи. Узлы перегородок
Используемые навыки:
2д графика
Описание
Решение
Результат
Соавторы
Презентация проекта
Примеры реализации
Описание
Рабочие чертежи. Узлы перегородок
Презентация проекта
Оценили проект:
0
×
Оценили проект
×
Авторизация
Для того чтобы оценивать проекты, вам нужно войти на сайт
Другие проекты
Все проекты
Визуализация интерьера
Развертка в цвете
2 таж
FREELANCE.RU
Toggle navigation
Нанять фрилансера
Заказчику
Найти по специализации
Найти по услугам
Провести конкурс
Разместить задание
Собрать команду
Другое
Найти работу
Фрилансеру
Найти задание
Присоединиться к команде
Участвовать в конкурсе
Другое
Возможности
Для заказчика
Для фрилансера
Вход
Разместить задание
▲