что посмеешь, то и пожнешь

Андрей Калин Demyanovich

Рейтинг: 79
не верифицирован
Всего отзывов: 0
  • Работ в портфолио: 9
  • Типовых услуг: 0
  • Работ на продажу: 0
Был на сайте:

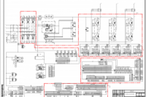
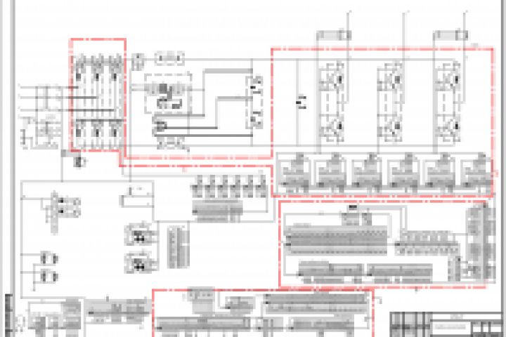
Схема электрическая принципиальная на винтовую насосную установк

Используемые навыки:

Описание

Данный чертеж был оцифрован из бумажного формата в AutoCAD методом обводки заднего плана векторной графикой.

Презентация проекта

pic2775154.jpg

Оценили проект:

0