Работа 3041381
Для полной функциональности этого сайта необходимо включить JavaScript.
Киев
На сайте с: 19.01.2017
Света Иванова
Sveta2601
Рейтинг: 46
не верифицирован
Всего отзывов:
0
Работ в портфолио:
6
Типовых услуг:
0
Работ на продажу:
0
Был на сайте:
2017-01-23 в 12:34
inbox
Предложить работу
Добавить в избранное
Добавить рекомендацию
Пожаловаться
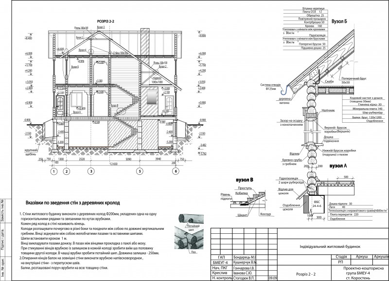
Инженерия
7
0
Работа 3041381
Используемые навыки:
Промышленное и гражданское строительство
Описание
Решение
Результат
Соавторы
Презентация проекта
Примеры реализации
Описание
Презентация проекта
Оценили проект:
0
×
Оценили проект
×
Авторизация
Для того чтобы оценивать проекты, вам нужно войти на сайт
Другие проекты
Все проекты
административное здание
административно-производственное здание
Фасад админинистративно-торгового здания
FREELANCE.RU
Toggle navigation
Нанять фрилансера
Заказчику
Найти по специализации
Найти по услугам
Провести конкурс
Разместить задание
Другое
Найти работу
Фрилансеру
Найти задание
Присоединиться к команде
Участвовать в конкурсе
Другое
Возможности
Для заказчика
Для фрилансера
Вход
Разместить задание
▲