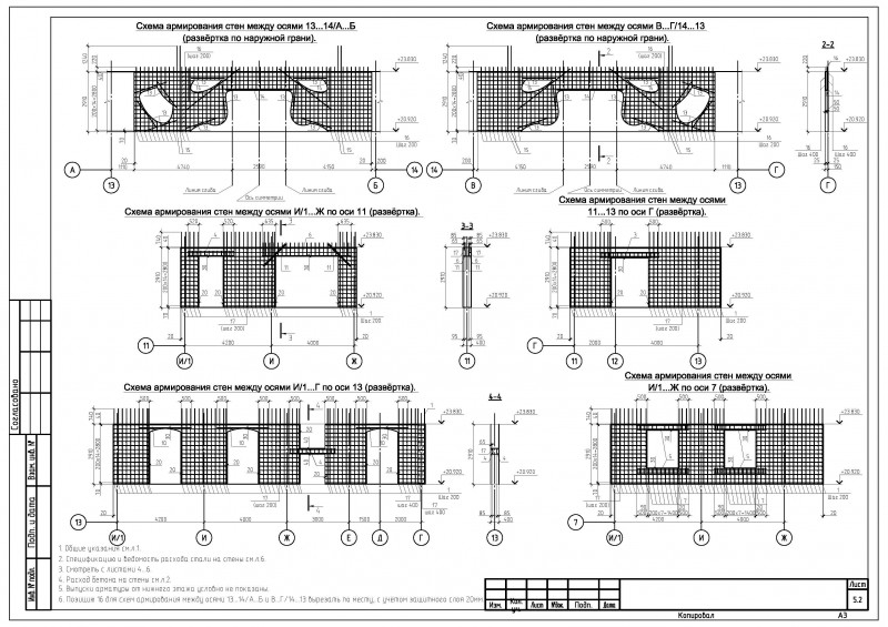
Гостиница с подземной автопарковкой
Для полной функциональности этого сайта необходимо включить JavaScript.
Новосибирск
На сайте с: 06.09.2016
Проектирование по разумной цене.
Вячеслав Armonbet
Armonbet
Рейтинг: 120
не верифицирован
Всего отзывов:
0
Работ в портфолио:
60
Типовых услуг:
0
Работ на продажу:
0
Был на сайте:
2017-03-06 в 20:00
inbox
Предложить работу
Добавить в избранное
Добавить рекомендацию
Пожаловаться
Инженерия
13
0
Гостиница с подземной автопарковкой
Используемые навыки:
Строительные конструкции
Описание
Решение
Результат
Соавторы
Презентация проекта
Примеры реализации
Описание
Презентация проекта
Оценили проект:
0
×
Оценили проект
×
Авторизация
Для того чтобы оценивать проекты, вам нужно войти на сайт
Другие проекты
Все проекты
27 этажный жилой дом с административными помещениями
Железнодорожная станция
22 этажный жилой дом с административными помещениями
FREELANCE.RU
Toggle navigation
Нанять фрилансера
Заказчику
Найти по специализации
Найти по услугам
Провести конкурс
Разместить задание
Виртуальный HR
Другое
Найти работу
Фрилансеру
Найти задание
Присоединиться к команде
Участвовать в конкурсе
Другое
Возможности
Для заказчика
Для фрилансера
Вход
Разместить задание
▲