Рейтинг: 52
не верифицирован
Всего отзывов: 0
  • Работ в портфолио: 2
  • Типовых услуг: 0
  • Работ на продажу: 0
Был на сайте:

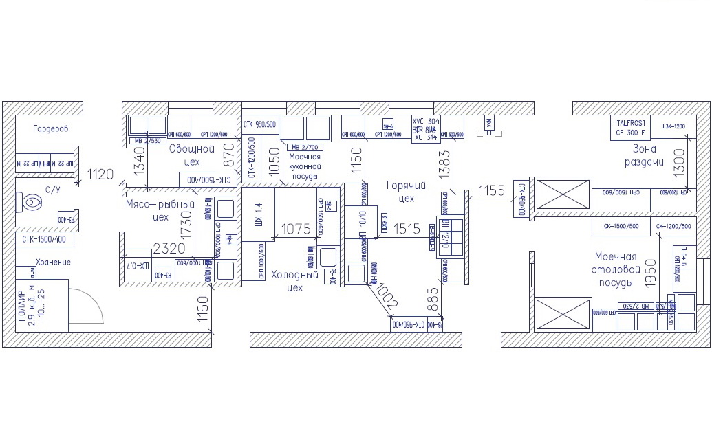
Проектирование и расстановка оборудования

Описание

Проектирование и расстановка оборудования пищевых производств согласно нормам санитарно-эпидемиологических требований.

Презентация проекта

pic2496430.jpg
Безымянный1.jpg

Оценили проект:

0