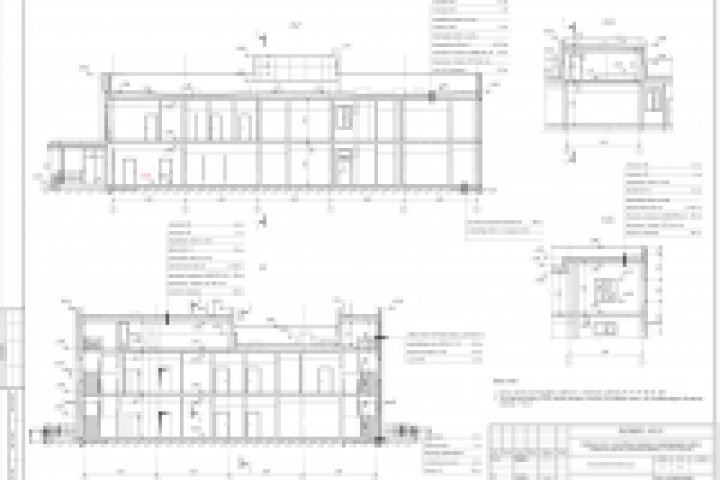
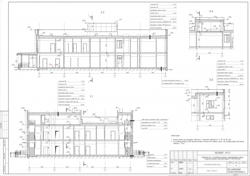
здание АБК спортивного комплекса. АГР, стадия П
Для полной функциональности этого сайта необходимо включить JavaScript.
Москва
На сайте с: 18.09.2013
Игорь Свибович
svibovich
Рейтинг: 91
не верифицирован
Всего отзывов:
0
Работ в портфолио:
41
Типовых услуг:
0
Работ на продажу:
0
Был на сайте:
2017-04-01 в 02:13
+79295057852
inbox
Предложить работу
Добавить в избранное
Добавить рекомендацию
Пожаловаться
Дизайн пространства
24
0
здание АБК спортивного комплекса. АГР, стадия П
Используемые навыки:
Архитектура зданий и сооружений
Описание
Решение
Результат
Соавторы
Презентация проекта
Примеры реализации
Описание
Презентация проекта
Оценили проект:
0
×
Оценили проект
×
Авторизация
Для того чтобы оценивать проекты, вам нужно войти на сайт
Другие проекты
Все проекты
загородный дом площадью 270 м2
крытый теннисный корт на 3 площадки. АГР, стадия П
Интерьер магазина одежды 56м2
FREELANCE.RU
Toggle navigation
Нанять фрилансера
Заказчику
Найти по специализации
Найти по услугам
Провести конкурс
Разместить задание
Виртуальный HR
Другое
Найти работу
Фрилансеру
Найти задание
Присоединиться к команде
Участвовать в конкурсе
Предложить услугу
Другое
Возможности
Для заказчика
Для фрилансера
Вход
Разместить задание
▲