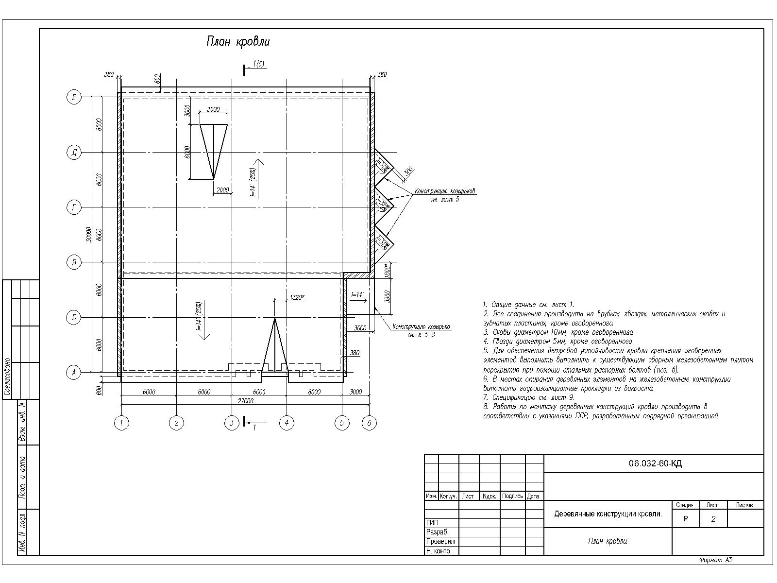
Стропильные конструкции кровли
Для полной функциональности этого сайта необходимо включить JavaScript.
Екатеринбург
На сайте с: 15.04.2011
Иван Горьков
ISGorkov
Рейтинг: 101
не верифицирован
Всего отзывов:
1
0
Нейросаммари
Работ в портфолио:
36
Типовых услуг:
0
Работ на продажу:
0
Был на сайте:
2026-01-08 в 16:19
inbox
Предложить работу
Добавить в избранное
Добавить рекомендацию
Пожаловаться
Инженерия
19
0
Стропильные конструкции кровли
Используемые навыки:
Строительные конструкции
Описание
Решение
Результат
Соавторы
Презентация проекта
Примеры реализации
Описание
Лист 2
Презентация проекта
Оценили проект:
0
×
Оценили проект
×
Авторизация
Для того чтобы оценивать проекты, вам нужно войти на сайт
Другие проекты
Все проекты
Стропильные конструкции кровли
Креатив в архитектуре
Стропильные конструкции кровли
FREELANCE.RU
Toggle navigation
Нанять фрилансера
Заказчику
Найти по специализации
Найти по услугам
Провести конкурс
Разместить задание
Виртуальный HR
Другое
Найти работу
Фрилансеру
Найти задание
Присоединиться к команде
Участвовать в конкурсе
Другое
Возможности
Для заказчика
Для фрилансера
Вход
Разместить задание
▲