Рейтинг: 44
не верифицирован
Всего отзывов: 0
  • Работ в портфолио: 4
  • Типовых услуг: 0
  • Работ на продажу: 0
Был на сайте:

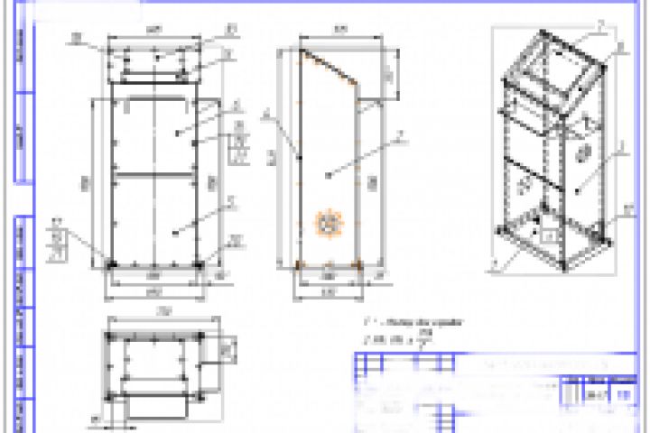
Корпус блока управления АЛС

Используемые навыки:

Описание

Корпус блока управления Автоматической Сварочной Линии.(Часть инженерных решений скрыта про требованию заказчика проекта)

Презентация проекта

pic3129227.jpg

Оценили проект:

0