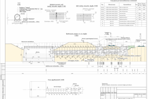
Водопропускная труба
Для полной функциональности этого сайта необходимо включить JavaScript.
Москва
Роман Москвитин
r_moskv
Рейтинг: 138
не верифицирован
Всего отзывов:
0
Опубликовал заданий:
2
Работ в портфолио:
3
Типовых услуг:
0
Работ на продажу:
0
Возраст:
34 года
Зарегистрирован:
14.05.2017
Был на сайте:
2025-07-23 в 10:17
Предложить работу
Добавить в избранное
Добавить рекомендацию
Пожаловаться
Инженерия
4
0
Водопропускная труба
Используемые навыки:
Проектирование объектов
Описание
Решение
Результат
Соавторы
Презентация проекта
Примеры реализации
Описание
Презентация проекта
Оценили проект:
0
×
Оценили проект
×
Авторизация
Для того чтобы оценивать проекты, вам нужно войти на сайт
Другие проекты
Все проекты
Конструкции металлические
Конструкции железобетонные
FREELANCE.RU
Toggle navigation
Нанять фрилансера
Заказчику
Найти по специализации
Найти по услугам
Провести конкурс
Разместить задание
Виртуальный HR
Найти студию
Другое
Найти работу
Фрилансеру
Найти задание
Присоединиться к команде
Участвовать в конкурсе
Предложить услугу
Другое
Возможности
Для заказчика
Для фрилансера
Вход
Разместить задание
▲