Мир прекрасен и удивителен!

Наталья Симакова Natalia_Si

Рейтинг: 107
не верифицирован
Всего отзывов: 0
  • Работ в портфолио: 57
  • Типовых услуг: 0
  • Работ на продажу: 0
Был на сайте:

Работа 1872040

Используемые навыки:

Описание

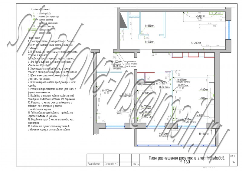
Полный комплект чертежей и 3D видов только у меня в личном архиве.
Стиль : современный
Заказчик: молодая семья из 2-х человек с перспективой ребёнка

Презентация проекта

pic1872040.jpg

Оценили проект:

0