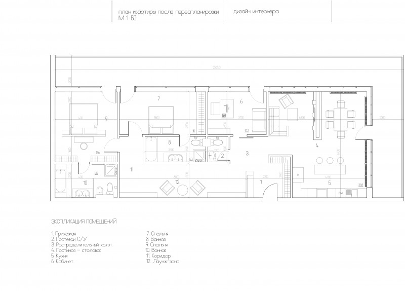
План квартиры после перепланировки
Для полной функциональности этого сайта необходимо включить JavaScript.
Москва
На сайте с: 08.03.2016
быстро, дешево, качественно
Валерия и Никита
leranikita
Рейтинг: 94
не верифицирован
Всего отзывов:
0
Работ в портфолио:
54
Типовых услуг:
0
Работ на продажу:
0
Был на сайте:
2017-05-17 в 16:44
+7(917)5422201, +7(926)8420714
inbox
pyataeva.v@mail.ru
Предложить работу
Добавить в избранное
Добавить рекомендацию
Пожаловаться
Дизайн пространства
12
0
План квартиры после перепланировки
Используемые навыки:
Дизайн интерьеров
Описание
Решение
Результат
Соавторы
Презентация проекта
Примеры реализации
Описание
Archicad
Презентация проекта
Оценили проект:
0
×
Оценили проект
×
Авторизация
Для того чтобы оценивать проекты, вам нужно войти на сайт
Другие проекты
Все проекты
дизайн интерьера квартиры
VN
План квартиры до перепланировки
FREELANCE.RU
Toggle navigation
Нанять фрилансера
Заказчику
Найти по специализации
Найти по услугам
Провести конкурс
Разместить задание
Виртуальный HR
Другое
Найти работу
Фрилансеру
Найти задание
Присоединиться к команде
Участвовать в конкурсе
Предложить услугу
Другое
Возможности
Для заказчика
Для фрилансера
Вход
Разместить задание
▲