совершенству нет предела 8(909)9243932

Екатерина Промышлянская Katyagoddess

Рейтинг: 104
не верифицирован
Всего отзывов: 0
  • Работ в портфолио: 34
  • Типовых услуг: 0
  • Работ на продажу: 0
Была на сайте:

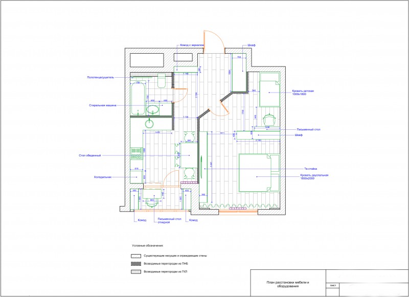
План расстановки мебели и оборудования

Используемые навыки:

Описание

План квартиры 48 кв м выполненн в программе ArhiCad

Презентация проекта

pic2621550.jpg

Оценили проект:

0