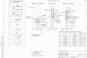
Конструкция железобетонной подпорной стены
Для полной функциональности этого сайта необходимо включить JavaScript.
Москва
На сайте с: 26.05.2016
Проектирование и строительство домов и разнообразных сооружений
Павел Жаров
spp-77
Рейтинг: 85
не верифицирован
Всего отзывов:
0
Работ в портфолио:
25
Типовых услуг:
0
Работ на продажу:
0
Был на сайте:
2017-07-20 в 17:37
Предложить работу
Добавить в избранное
Добавить рекомендацию
Пожаловаться
Инженерия
19
0
Конструкция железобетонной подпорной стены
Используемые навыки:
Строительные конструкции
Описание
Решение
Результат
Соавторы
Презентация проекта
Примеры реализации
Описание
Презентация проекта
Оценили проект:
0
×
Оценили проект
×
Авторизация
Для того чтобы оценивать проекты, вам нужно войти на сайт
Другие проекты
Все проекты
дымовая труба с двумя газоотводящими стволами
Индивидуальный жилой дом ИД-2
Индивидуальный жилой дом ИД-2
FREELANCE.RU
Toggle navigation
Нанять фрилансера
Заказчику
Найти по специализации
Найти по услугам
Провести конкурс
Разместить задание
Собрать команду
Другое
Найти работу
Фрилансеру
Найти задание
Присоединиться к команде
Участвовать в конкурсе
Другое
Возможности
Для заказчика
Для фрилансера
Вход
Разместить задание
▲