Работа 3206111
Для полной функциональности этого сайта необходимо включить JavaScript.
Новокузнецк
Дэниил Паринов
aspard
Рейтинг: 94
не верифицирован
Всего отзывов:
0
Активность:
Работ в портфолио:
4
Типовых услуг:
0
Работ на продажу:
0
Зарегистрирован:
29.07.2017
Был на сайте:
2017-08-01 в 15:53
inbox
Предложить работу
Добавить в избранное
Добавить рекомендацию
Пожаловаться
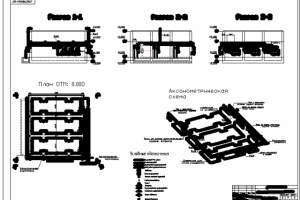
Инженерия
16
0
Работа 3206111
Используемые навыки:
Промышленное и гражданское строительство
Описание
Решение
Результат
Соавторы
Презентация проекта
Примеры реализации
Описание
Презентация проекта
Оценили проект:
0
×
Оценили проект
×
Авторизация
Для того чтобы оценивать проекты, вам нужно войти на сайт
Другие проекты
Все проекты
Редуктор
Работа 3206113
Чертеж пластового месторождения
FREELANCE.RU
Toggle navigation
Нанять фрилансера
Заказчику
Найти по специализации
Найти по услугам
Провести конкурс
Разместить задание
Виртуальный HR
Найти студию
Другое
Найти работу
Фрилансеру
Найти задание
Присоединиться к команде
Участвовать в конкурсе
Предложить услугу
Другое
Возможности
Для заказчика
Для фрилансера
Вход
Разместить задание
▲